house36

Ipari használatú csarnok és hozzá tartozó iroda épület Kecskeméten eladó!

K

#3620681 - Kecskemét - Eladó - Ipari

Ár: 750 M Ft
 
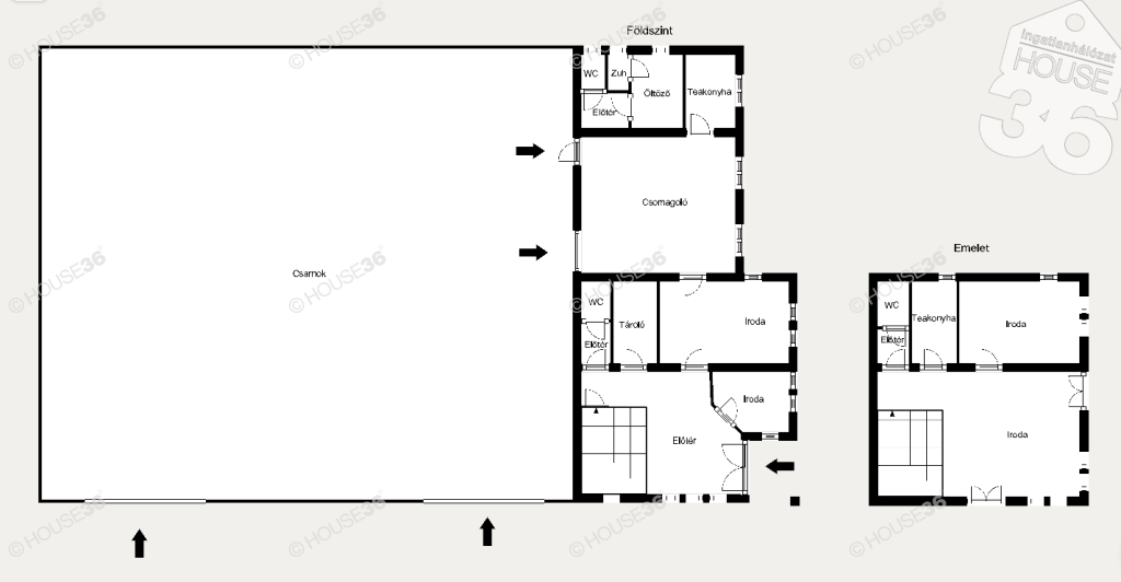
Kecskeméten 540 m2-es ipari használatú épület 1457 m2-es telken eladó!

Jellemzők:
  • 540 m2 felépítmény
  • 2010-es építés
  • kiépített informatikai, tűzjelző, telefonközpont és riasztó hálózat (optikai szálas internet kiépítve)
  • összközmű
  • tűzálló festékkel festett csarnokváz, Tűzi-víz csapok kiépítve, kiépített tűzoltósági távfelügyelet
  • 2 db videó kaputelefon
  • elektromos személy illetve toló kapu
  • automata öntöző rendszer
  • parkosított udvar
  • műanyag nyílászárók, UV álló védő fóliával ellátva
  • 2 tea konyha
  • kiépített öltöző, fürdővel
  • bemutató/csomagoló terem
  • 4 iroda
  • Hörmann és Tormax kapuk a csarnokon
  • csarnokba további öltöző létesítési lehetőség
  • 18 cm vastag ipari beton a csarnokban
  • központi szünetmentes áramforrás rendszer kiépítve (készülék nélkül)
  • elektromos rejtett redőny előkészítve
  • klimatizált irodák
  • térköves udvar
  • lehajtható zászló rudak az udvarban
  • elektromos áram bővítési lehetőség
  • 6 parkoló 
  • Teherautóval könnyen megközelíthető ​
Figyelem az adatlap megbízóinktól kapott adatok
alapján készült,pontosságáért felelősséget
nem tudunk vállalni!
A HOUSE36 kínálatában található összes ingatlannal
kapcsolatban tudok felvilágosítást nyújtani!
     Hívjon bizalommal!
 Szolgáltatásaink Kereső ügyfeleink számára
                   INGYENESEK!       
​     
 

Nincs megjeleníthető értékelés.
Ügyvitel: Eladó
Ingatlan típusa: Ipari
Ipari altípus: Telephely
Építési mód: Egyéb
Fűtési mód: Gázfűtés (cirkó)
Ingatlan állapota: Jó
Parkolási lehetőségek: Gépkocsi beálló, Utcán
Közművek: Összközmű
Alapterület: 540 m2
Telek területe: 1457 m2
Szobák száma: 5 db
Fürdőszobák száma: 3 db
Építés éve: 2010
Pince van: ---
Esztétikai felújítások: Burkolatcsere, Konyhabútorcsere, Fürdőszoba felújítás, Festés
Műszaki felújítások: Vezetékcsere, Nyílászárócsere, Tetőcsere, Szigetelés, Fűtéskorszerűsítés
Tetőfedés anyaga: Cserép
Homlokzati szig.: 7 cm
Födém szig.: 30 cm
Tetőtér beépíthető: Nem
Nyílászárók fajtája: Műanyag, Szúnyoghálóval ellátva, Redőnyökkel ellátva
Extrák: Klíma, Riasztó, Elektromos garázskapu, Elektromos kapu, Automata öntözőrendszer, Elektromos redőny
Betonút melletti: Igen
Buszmegálló távolsága kb: 200 m
Bolt távolsága kb: 1000 m
Közvilágítás: Van
Ingatlan tulajdoni helyzete: Saját
Figyelem az adatlap megbízónktól kapott adatok alapján készült, pontosságáért felelősséget nem tudunk vállalni!
Dakó Ferenc
Vezető értékesítő
Értékesítői fokozat:
Értékesítői fokozat
Kép Kép Kép
Ügyfél értékelés:
4.9 (124 értékelés alapján)

Kereső ügyfél

2025.09.30.

Pontosan érkezett (már ott volt), felkészült volt az ingatlannal kapcsolatban és minden kérdésemre választ kaptam.

Megbízó

2025.06.12.

Kereső ügyfél

2025.06.03.

Korrekt, udvarias, segítőkész.

Kereső ügyfél

2025.01.20.

Kereső ügyfél

2024.10.29.

Kereső ügyfél

2024.10.06.

Kereső ügyfél

2024.09.04.

Kereső ügyfél

2024.08.13.

Kereső ügyfél

2024.08.01.

Kereső ügyfél

2024.05.23.

Kereső ügyfél

2024.05.12.

Megbízó

2024.05.11.

Kereső ügyfél

2024.05.07.

Kereső ügyfél

2024.04.16.

Ferenc rendkívül segítőkész és egy nagyon korrekt értékesítő! Hálás szívvel tudom ajánlani!

Megbízó

2024.04.12.

Kereső ügyfél

2024.03.20.

Nagyon szimpatikus, segítőkész, teljesen felkészült szakember

Kereső ügyfél

2024.03.19.

Kereső ügyfél

2024.02.21.

Kereső ügyfél

2024.02.15.

Kereső ügyfél

2024.02.14.

Kedves, közvetlen segítőkész! Örülök, hogy Ő segít nekem!

Kereső ügyfél

2024.01.31.

Megbízó

2024.01.13.

Maximálisan elégedett vagyok Ferenc munkájával. Udvarias, felkészült, rugalmas.

Kereső ügyfél

2024.01.08.

Kereső ügyfél

2024.01.03.

Visszajelzett. Amit ígért azt betartotta. Őszinte és segítőkész. Várjuk a kért információkat.

Kereső ügyfél

2023.11.22.

Kereső ügyfél

2023.11.14.

Kereső ügyfél

2023.11.09.

Kereső ügyfél

2023.10.10.

Tájékozott, felkészült, udvarias volt.

Kereső ügyfél

2023.10.07.

Kereső ügyfél

2023.10.02.

Kereső ügyfél

2023.09.19.

Mindenben a segítségünkre van, a számunkra ideális otthon megtalálásában.

Kereső ügyfél

2023.09.15.

Kereső ügyfél

2023.07.26.

Kereső ügyfél

2023.06.30.

Megbízó

2023.05.27.

Kereső ügyfél

2023.04.18.

Kereső ügyfél

2023.04.17.

Remek Szakember! Sok ingatlant megnéztünk mire megtaláltuk a megfelelőt, mindig felkeszült, türelmes és segítőkész volt, bátran ajánlom bárkinek!

Kereső ügyfél

2023.03.30.

Kereső ügyfél

2023.03.21.

Segitokesz

Megbízó

2023.02.25.

Kereső ügyfél

2023.02.09.

A+

Kereső ügyfél

2023.02.04.

Kereső ügyfél

2023.01.18.

Kereső ügyfél

2023.01.13.

Kereső ügyfél

2023.01.05.

Megbízó

2022.12.20.

Kereső ügyfél

2022.12.14.

Gyors és határozott az ügyintézése, barátságos, érthetően és segítőkészen tájékoztat személyesen és elektronikus eszközökön is. Köszönöm a munkáját.

Kereső ügyfél

2022.11.08.

Kereső ügyfél

2022.11.07.

Kereső ügyfél

2022.11.03.

Nagyon kedves, mindig felkészült, pontos és segítőkész! Bátran ajánlom!

Megbízó

2022.10.13.

Megbízó

2022.09.27.

Kereső ügyfél

2022.08.26.

Kereső ügyfél

2022.08.08.

Segítőkész ,kiválóan végzi munkáját.

Kereső ügyfél

2022.08.02.

Mindenben segített, hogy számunkra a legideálisabb ingatlanhoz jussunk.

Kereső ügyfél

2022.07.06.

Kereső ügyfél

2022.06.30.

Kereső ügyfél

2022.06.29.

Felkészült, alapos, segítőkész.

Megbízó

2022.06.15.

Kereső ügyfél

2022.06.07.

Kereső ügyfél

2022.05.19.

Kereső ügyfél

2022.05.10.

Megbízó

2022.05.10.

Kereső ügyfél

2022.05.10.

Megbízó

2022.05.09.

Kereső ügyfél

2022.04.14.

Kereső ügyfél

2022.04.11.

Kereső ügyfél

2022.04.04.

Kereső ügyfél

2022.04.01.

Udvarias, segítőkész, az ügyfél igényeit tartja előtérben

Kereső ügyfél

2022.03.22.

Segítőkész, felkészült, közvetlen, udvarias.

Kereső ügyfél

2022.03.11.

Korrekt, pontos.

Kereső ügyfél

2022.02.25.

Nagyin felkészült, rugalmas, segitőkész és emparikus

Kereső ügyfél

2022.02.25.

Megbízó

2022.02.23.

Megbízó

2022.02.19.

Kereső ügyfél

2022.01.28.

Kereső ügyfél

2022.01.27.

Megbízó

2022.01.19.

Megbízó

2021.12.22.

Megbízó

2021.12.22.

Kereső ügyfél

2021.11.30.

Kereső ügyfél

2021.11.16.

Kereső ügyfél

2021.11.11.

Kereső ügyfél

2021.10.30.

Kereső ügyfél

2021.10.29.

Kereső ügyfél

2021.10.21.

Kereső ügyfél

2021.10.18.

Rugalmas, készséges.

Kereső ügyfél

2021.10.05.

Pontos , nagyon készséges udvarias

Kereső ügyfél

2021.10.05.

Udvarias,rátermett nagyon készséges

Megbízó

2021.09.25.

Kereső ügyfél

2021.09.16.

Pontos, korrekt és segítőkész

Kereső ügyfél

2021.09.13.

Kereső ügyfél

2021.09.08.

Rátermett,rendkívül készséges,nagyon jó megoldó képességű,udvarias.

Megbízó

2021.09.04.

Korrekt, megbízható, segítőkész.

Kereső ügyfél

2021.08.30.

Kereső ügyfél

2021.08.18.

Super Arbeit!!!!

Kereső ügyfél

2021.08.11.

Igazán segítőkész, türelmes és megbízható! Nagyon elégedettek vagyunk és köszönjük!

Kereső ügyfél

2021.08.04.

Korrekt,gyors,ügyfél központú,nagyon intelligens hozáállást tapasztaltam.

Megbízó

2021.08.03.

Korrekt, rugalmas, megbízható.

Kereső ügyfél

2021.07.24.

Kereső ügyfél

2021.07.22.

Megbízó

2021.07.02.

Teljesen korrekt, segítőkész, rugalmas és megbízható, felkészült szakember.

Kereső ügyfél

2021.06.17.

Kereső ügyfél

2021.05.28.

Kereső ügyfél

2021.05.15.

Kereső ügyfél

2021.05.14.

Kereső ügyfél

2021.04.23.

Kereső ügyfél

2021.04.15.

Megbízó

2021.04.14.

Kereső ügyfél

2021.04.12.

Megbízó

2021.04.10.

Kereső ügyfél

2021.03.19.

Rendkívül felkészült és segítőkész ingatlanértékesítő.

Kereső ügyfél

2021.03.12.

Szimpatikus, felkészült, segítőkész, empatikus egyéniség.

Megbízó

2021.02.02.

Kereső ügyfél

2021.01.28.

Az értékesítő maximálisan jól végezte a közvetítést!Neki járna az 5 csillag. Az ingatlan sajnos problémás számomra.

Kereső ügyfél

2021.01.11.

Megbízó

2021.01.06.

Megbízó

2020.12.05.

Kereső ügyfél

2020.11.24.

Pontos megbízható infórmációkkal látott el. Továbbra is várom ajánlatait Üdv H.Platform Hungary Kft. Haba Ferenc ügyvezető

Kereső ügyfél

2020.10.19.

Kiváló! :)

Kereső ügyfél

2020.10.02.

Pontos, segítőkész, kedves ! Kiváló!

Megbízó

2020.09.26.

Megbízó

2020.03.17.

Rendkívül jól kommunikál, érthető, logikus, átlátja az ingatlanpiaci folyamatokat, jó tanácsokat ad. Határozott, intelligens, udvarias személyiség.


Írjon nekem!
A siker csak rajtad múlik
A siker csak
rajtad múlik