house36

Gerjenben, a Duna partján, nagy lehetőségekkel teli ingatlan eladó!

K

#3620596 - Gerjen - Eladó - Vendéglátás

Tökéletes befektetés azok számára, akik a fejlődő Gerjenben szeretnének üzletet nyitni! Ez a 347 m2-es 2 szintes ( földszint, alagsor) ingatlan 560 m2-es telken helyezkedik el a falu központjában. 
Főbb jellemzők:
        - Kiemelt elhelyezkedés a paksi beruházások és a Kalocsa-Gerjen híd miatt
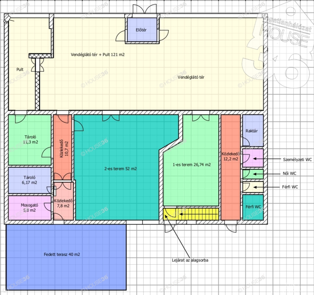
        - 121 m2-es vendéglátó tér és további, külön megközelíthető privát termek (27 m2 és 52 m2)
        - További helyiségek: raktár, konyha, személyzeti és vendég WC-k, mosogató
        - 75 m2-es alagsor kazánházzal és raktárhelyiségekkel
        - Fűtése vegyes tüzelésű kazánról és gázkazánról, melegvíz ellátása gázbojlerrel
        - 2 db hűtő-fűtő klíma (2022-ben beszerelve)
        - Nyílászárói műanyagszerkezet, hőszigetelő üvegezéssel
        - Teljes felszereléssel együtt megvásárolható (hűtőkamra, hűtőpult, stb.)
        - Mobilgarázs az udvaron, benne a vételárban!
Ne hagyja ki ezt a fantasztikus lehetőséget!
Az ingatlan ideális vendéglátó egység, rendezvényközpont vagy más üzleti célra. 

A HOUSE36 kínálatában található összes ingatlannal kapcsolatban tudok felvilágosítást nyújtani!
Amennyiben eladó-kiadó ingatlana van, vagy finanszírozási megoldást keres, hívjon! Megtaláljuk a legjobb lehetőséget Önnek! Hitelspecialistánk mindenben segít. Irodánkban ez a szolgáltatás INGYENES.
 

Figyelem! Az adatlap a megbízónktól kapott adatok alapján készült. Pontosságáért felelősséget nem tudunk vállalni!
Nincs megjeleníthető értékelés.
Ügyvitel: Eladó
Ingatlan típusa: Vendéglátás
Vendéglátás altípus: Egyéb vendéglátó egység
Építési mód: Tégla
Fűtési mód: Gázfűtés (cirkó), Klíma
Ingatlan állapota: Jó
Tájolás lakóingatlannál: D
Parkolási lehetőségek: Utcán
Közművek: Összközmű
Alapterület: 347 m2
Telek területe: 560 m2
Erkély: nem
Terasz(ok) területe: 40 m2
Pince van: Van
Pince területe: 49 m2
Műszaki felújítások: Nyílászárócsere, Szigetelés
Tetőfedés anyaga: Cserép
Tetőtér beépíthető: ---
Nyílászárók fajtája: Műanyag
Közös helyiség: Van
Extrák: Klíma
Betonút melletti: Igen
Bolt távolsága kb: 10 m
Iskola/óvoda távolsága: 70 m
Közvilágítás: Van
Ingatlan tulajdoni helyzete: Saját
Emelet: ---
Figyelem az adatlap megbízónktól kapott adatok alapján készült, pontosságáért felelősséget nem tudunk vállalni!
Elnevezés Méret Burkolat Szint
Vendéglátó tér 121 nm Kőburkolat Alap
Privát terem 1 52 nm Kőburkolat Alap
Közlekedő 1 11 nm Kőburkolat Alap
Közlekedő 2 8 nm Kőburkolat Alap
Közlekedő 3 12 nm Kőburkolat Alap
Tároló 1 11 nm Kőburkolat Alap
Mosogató 6 nm Kőburkolat Alap
Tároló 2 6 nm Kőburkolat Alap
Raktár 3 nm Kőburkolat Alap
WC helységek 9 nm Kőburkolat Alap
Lépcsőház 6 nm Kőburkolat Alap
Privát terem 2 27 nm Kőburkolat Alap
Alagsor 75 nm Beton Alap
Bézsenyi Tamás
Ingatlanértékesítő
Ügyfél értékelés:
5 (2 értékelés alapján)

Megbízó

2025.11.09.

Egy héttel ezelőtt adtuk át az ingatlant Tamásnak értékesítésre. Szerződéskötés, átadás gördülékeny volt. Jó ötletekkel állt elő ezért bizakodó vagyok, hogy az ingatlan értékesítésére hamar sor kerül.

Megbízó

2025.11.07.

Telefonon értesített Tamás, ha bármi történt az érdeklődéssel kapcsolatban. Kérdéseimre választ kaptam.


Írjon nekem!
A siker csak rajtad múlik
A siker csak
rajtad múlik