house36

Gyönyörű környezetben igényes vevőknek!

K

#3620844 - Kecskemét - Eladó - Ház

Új
Kizárólagos
megbízás
Ár: 139.99 M Ft
 
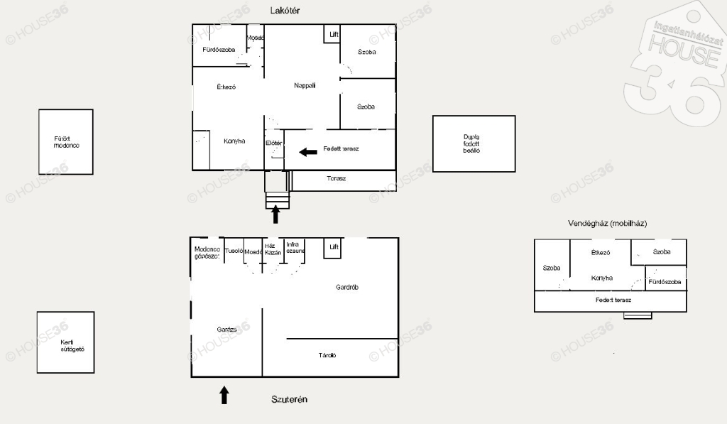
Kecskeméten eladó egy könnyen megközelíthető, aszfaltozott zsákutcában lévő, sokféle lehetőséget kínáló családi ház vendégházzal, saját erdővel, sok kényelmi kiegészítővel és gyönyörűen parkosított nagy területtel.
Jellemzői:
- Telek mérete: 8.642 m2 (3 hrsz-on)
- Főépület:
- 3.000 m2 parkosított, automata öntöző rendszerrel, fűthető-fedett medencével, kerti saletli kemencével, elektromos kapuval ellátott területen
- Lakótér: 80 m2 - nappali+2 szoba, konyha nagy étkezővel, tágas fürdőszoba, kamra
- Fedett terasz: 30 m2
- Szuterén: nagy fűtött garázs, zuhanyzó, mosdó, infra kabin, gépészet (medence ill. lakóház), óriási tároló helyiség (jelenleg gardrób szoba) - lakrész kialakítható
- A szuterénből a lakórészbe lift segítségével is feljuthatunk 
- Vendégház (mobilház):
- 1.164 m2 gondozott zöld területen                                       
- kb.: 30 m2- konyha étkezővel, 2 szoba, fürdőszoba, fedett terasszal   
- 2 db 12 m2-es zárható tároló (fa ill. fém)
- Saját erdő: 4.478 m2 - 12 m2-es lemez házikóval
Ez a különleges ingatlan egy helyen kínál családi otthont, parkosított kertet, vendégszállást, wellness élményt és saját erdőt.
Figyelem az adatlap megbízónktól kapott adatok alapján készült, pontosságáért felelősséget nem tudunk vállalni!
Nincs megjeleníthető értékelés.
Ügyvitel: Eladó
Ingatlan típusa: Ház
Ház altípus: Családi ház
Építési mód: Tégla
Fűtési mód: Gázfűtés (cirkó), Klíma
Ingatlan állapota: Újszerű
Parkolási lehetőségek: Garázs, Fedett gépkocsi beálló
Közművek: Gáz, Villany, Városi víz, Fúrtkút
Alapterület: 200 m2
Telek területe: 8642 m2
Erkély: nem
Terasz(ok) területe: 30 m2
Szobák száma: 5 db
Fürdőszobák száma: 3 db
Építés éve: 2008
Pince van: Van
Pince területe: 100 m2
Esztétikai felújítások: Burkolatcsere, Konyhabútorcsere, Fürdőszoba felújítás, Festés
Műszaki felújítások: Vezetékcsere, Nyílászárócsere
Tetőfedés anyaga: Cserép
Tetőtér beépíthető: Nem
Nyílászárók fajtája: Fa, Szúnyoghálóval ellátva, Redőnyökkel ellátva
Lift: Van
Melléképületek száma: 3 db
Melléképületek területe: 36 m2
Extrák: Klíma, Elektromos garázskapu, Elektromos kapu, Automata öntözőrendszer, Kerti sütögető/szaletli, Szauna, Kültéri medence
Betonút melletti: Igen
Közvilágítás: Nincs
Buszmegálló távolsága kb: 200 m
Bolt távolsága kb: 1000 m
Iskola/óvoda távolsága: 1500 m
Ingatlan tulajdoni helyzete: Saját
Figyelem az adatlap megbízónktól kapott adatok alapján készült, pontosságáért felelősséget nem tudunk vállalni!
Fricskáné Katalin
Vezető értékesítő
Értékesítői fokozat:
Értékesítői fokozat
Kép
Ügyfél értékelés:
4.9 (53 értékelés alapján)

Megbízó

2025.10.11.

Kereső ügyfél

2025.10.10.

Kereső ügyfél

2025.10.06.

Megbízó

2025.09.10.

Kereső ügyfél

2025.09.03.

Megbízó

2025.08.10.

Kereső ügyfél

2025.07.24.

Kereső ügyfél

2025.07.11.

Nagyon kedves és segítőkész. Csak ajánlani tudom

Kereső ügyfél

2025.06.12.

Segítő kész, felkészült

Megbízó

2025.06.11.

Kereső ügyfél

2025.06.02.

Kedves, figyelmes. Számunkra fontos információkat megosztott.

Megbízó

2025.02.17.

Kereső ügyfél

2025.02.10.

Kereső ügyfél

2025.02.04.

Kereső ügyfél

2025.02.04.

Megbízó

2025.02.01.

Kereső ügyfél

2025.01.21.

Profi, kedves, minden számomra fontos kérdésre tudott válaszolni!

Megbízó

2025.01.16.

Nagyon hálásak vagyunk a precíz, szakmailag első osztályú segítségért! Már sokadik alkalommal bizonyította Kata, hogy az egyik legjobb értékesítő! Köszönöm szépen a segítséget!

Kereső ügyfél

2024.12.30.

Kereső ügyfél

2024.11.14.

Kereső ügyfél

2024.10.05.

Kereső ügyfél

2024.08.26.

Kedves, felkészült, készséges,…..

Megbízó

2024.08.25.

Kereső ügyfél

2024.08.19.

Kereső ügyfél

2024.07.20.

nagyon jól felkészült szakember, abszolút megértette mit is keresünk.

Kereső ügyfél

2024.07.05.

szakmailag igen felkészült, segítőkész

Kereső ügyfél

2024.07.04.

Naprakész, segitőkész. Öröm vele együtt dolgozni

Megbízó

2024.06.08.

Kereső ügyfél

2024.05.29.

Kereső ügyfél

2024.05.08.

Megbízó

2024.04.13.

Kereső ügyfél

2024.01.12.

Kereső ügyfél

2023.12.24.

Kereső ügyfél

2023.11.17.

Kereső ügyfél

2023.11.17.

maximálisan elégedett vagyok!

Kereső ügyfél

2023.10.24.

Kereső ügyfél

2023.10.02.

Kereső ügyfél

2023.09.08.

Elmondott előzetesen mindent amit tudni szerettünk volna. A megtekintést követő napon is érdeklődött, hogy mi a véleményünk, ami egyedi és pozitív. Naprakész és ha új információt kap annak utána jár.

Kereső ügyfél

2023.08.31.

Mindenben segítőkész. Felkészült.

Kereső ügyfél

2023.08.18.

Katalin teljeskörű képet adott az ingatlanról, részletesen és alaposan bemutatta azt. Nem csak az alapvető információkra koncentrált, ez segített teljes körűen megérteni az ingatlan potenciálját és előnyeit.

Megbízó

2023.08.02.

Nagyon segítőkész, közlékeny, talpraesett! Ha vevőt hoz semmi dolgom nincs csak beengedni, ő intéz mindent beszél mutatja a házat! Nagyon meg vagyok elégedve vele!

Kereső ügyfél

2023.06.13.

Minden tájékoztatást megkaptunk, segítőkész, nagyon elégedettek voltunk! Köszönjük szépen a segítségét!!!

Megbízó

2023.05.17.

Rugalmas és segítőkész!

Kereső ügyfél

2023.02.22.

Nagyon kedves es segitokesz holgy.Koszonjuk ha segit

Megbízó

2023.02.15.

Kereső ügyfél

2023.02.15.

Kereső ügyfél

2023.02.08.

Kedves maximálisan segítőkész.

Kereső ügyfél

2023.01.23.

Megbízó

2023.01.19.

Kedves segítőkész tökéletes értékesítő.

Kereső ügyfél

2022.11.08.

Kereső ügyfél

2022.10.27.


Írjon nekem!
A siker csak rajtad múlik
A siker csak
rajtad múlik