house36

HITELEZHETŐ – ÚJ CSALÁDI HÁZ ÁGASEGYHÁZÁN

K

#3620824 - Ágasegyháza - Eladó - Ház

Új
Kizárólagos
megbízás
Ár: 44.9 M Ft
 

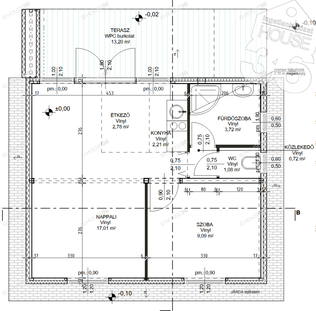
Ágasegyházán aszfaltos utcában, lakóövezeti részen, közel a főúthoz eladó egy új, acélszerkezetű, 50 m²-es családi ház, mely HITELEZHETŐ.

Elosztása:

  • 2 szoba
  • amerikai konyhás nappali
  • külön WC
  • fürdőszoba

Összközműves, azonnal költözhető. A kivitelezés szép, igényes, minden részletre kiterjedő tervdokumentációval. A helyiségek klímatizáltak. Tartozik hozzá egy 14 m²-es fedett terasz is.

A telek 1102 m², amelyen jogilag további építmény is kialakítható.

Hangulatos, modern otthon, 14 perc autóútra Kecskeméttől.

„Ha az ingatlan elnyerte tetszését, de előbb el kell adnia saját otthonát, keressen bizalommal – segítek megtalálni az újat!”
"Otthonteremtés Szívvel-Lélekkel"
Figyelem az adatlap a megbízónktól kapott adatok alapján készült, pontosságáért felelősséget nem tudunk vállalni!
A tulajdonos kérésére az ingatlan bemutatása egy személyes konzultáció után történik, ahol a részletes tájékoztatást kaphat az ingatlan paramétereiről és egyéb kényelmi szolgáltatásairól.
A HOUSE36 kínálatában található összes ingatlannal kapcsolatban tudok felvilágosítást nyújtani!
Szolgáltatásaink Kereső Ügyfeleink számára INGYENESEK!

 

Nincs megjeleníthető értékelés.
Ügyvitel: Eladó
Ingatlan típusa: Ház
Ház altípus: Családi ház
Építési mód: Acélváz szerkezet
Homlokzati szig.: 10 cm
Fűtési mód: Elektromos, Klíma
Ingatlan állapota: Új
Parkolási lehetőségek: Gépkocsi beálló, Utcán
Közművek: Összközmű
Energetikai besorolás: C
Alapterület: 50 m2
Telek területe: 1102 m2
Erkély: nem
Terasz(ok) területe: 14 m2
Szobák száma: 3 db
Fürdőszobák száma: 1 db
Építés éve: 2025
Pince van: Nincs
Tetőfedés anyaga: Járható lapostető
Födém szig.: 10 cm
Tetőtér beépíthető: Nem
Nyílászárók fajtája: Műanyag, Szúnyoghálóval ellátva, Redőnyökkel ellátva
Extrák: Klíma
Betonút melletti: Igen
Közvilágítás: Van
Buszmegálló távolsága kb: 200 m
Bolt távolsága kb: 200 m
Iskola/óvoda távolsága: 200 m
Ingatlan tulajdoni helyzete: Saját
Figyelem az adatlap megbízónktól kapott adatok alapján készült, pontosságáért felelősséget nem tudunk vállalni!
Héjjas Zsolt
Ingatlanértékesítő, ingatlan vagyonértékelő
Értékesítői fokozat:
Értékesítői fokozat
Ügyfél értékelés:
4.7 (14 értékelés alapján)

Kereső ügyfél

2025.11.30.

Megbízó

2025.11.20.

Az értesítővel nincs baj ! Viszont azzal , hogy senkit nem hoztak még az sz igazi baj ! Az első és úgy néz ki , hogy az útolsó megbízás amit kaptak tőlem !

Megbízó

2025.09.30.

Pontos, megbízható és rendkívül szereti munkáját, ami látszik és én nagyra értékelem!

Kereső ügyfél

2025.09.10.

Kereső ügyfél

2025.09.10.

Kereső ügyfél

2025.06.21.

Nagyon jó kapcsolattartó, sikeres értékesítő.

Megbízó

2025.06.18.

Kereső ügyfél

2025.06.04.

Kereső ügyfél

2025.05.07.

Mindig segítőkész volt, gyorsan reagált. Korrekt, jó ügyintézés.

Kereső ügyfél

2025.04.10.

Korrekt. Jó kapcsolattartás. Gyors reagálás.

Megbízó

2025.01.25.

Best service

Megbízó

2024.10.17.

Megbízó

2024.10.03.

Kereső ügyfél

2024.08.14.


Írjon nekem!
A siker csak rajtad múlik
A siker csak
rajtad múlik