house36

Helvécián önálló telken családi ház eladó!

K

#3619691 - Kecskemét - Eladó - Ház

Kecskeméthez közel, Helvécián a központtól gyors, új úton, 10 perc alatt megközelíthető részen kínálunk eladó házakat!!!
 
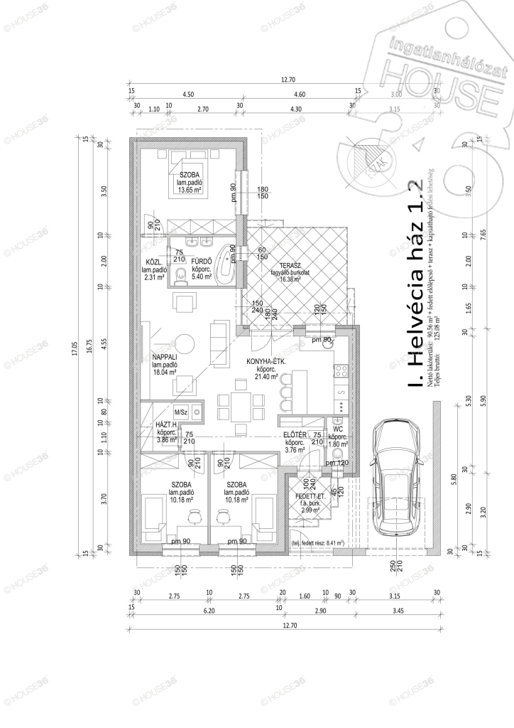
Kiváló elhelyezkedésű, új építésű környéken kínáljuk ezt a 90 m2-es, Nappali + 3 szobás prémium kategóriás családi házat, önálló 400 m2-es telken fedett beállóval.
Aszfaltozott út készül hamarosan./34

Egyéb paraméterek:
- nappali + 3 szoba
- nettó 90 m2 
- oldalhatáros építési mód
- Wienerberger Porotherm X-Therm tégla (+ 40 % hőtartás)
- 15 cm szigetelés
- 400 m2 -es összközműves önálló telek
- hőszivattyús fűtésrendszer
- padlófűtés
- prémium minőségű műanyag nyílászárók
- szaniterek 1 millió forintig az árban
- hideg - meleg burkolatok 9000.-/ m2
- ár garancia
- idő garancia
- várható átadás szerződéskötéstől számított 8-10 hónap
- módosítható tervek

AZ ÁR AZ ÉPÍTÉSI TELEK ÁRÁT IS TARTALMAZZA!
A képek az egyik referenciaházban készültek!!!!
CSAK NÁLUNK KERESSE!!!
RÉGI MEGY, ÚJ JÖN? KERESSEN BIZALOMMAL!! SEGÍTEK MEGOLDANI!!

Figyelem, az adatlap megbízóinktól kapott adatok alapján készültek, pontosságáért felelősséget nem tudunk vállalni!
A HOUSE36 kínálatában található összes ingatlannal kapcsolatban tudok felvilágosítást nyújtani.
Szolgáltatásaink ügyfeleink részére díjmentesek!
 
Nincs megjeleníthető értékelés.
Ügyvitel: Eladó
Ingatlan típusa: Ház
Ház altípus: Családi ház
Építési mód: Tégla
Homlokzati szig.: 15 cm
Fűtési mód: Gázfűtés (cirkó), Padlófűtés, Klíma
Ingatlan állapota: Új
Parkolási lehetőségek: Fedett gépkocsi beálló, Utcán
Közművek: Összközmű
Energetikai besorolás: A+
Alapterület: 90 m2
Telek területe: 400 m2
Erkély: nem
Szobák száma: 4 db
Fürdőszobák száma: 1 db
Építés éve: 2025
Pince van: ---
Tetőfedés anyaga: Cserép
Födém szig.: 30 cm
Tetőtér beépíthető: Nem
Nyílászárók fajtája: Műanyag, Redőnyökkel ellátva
Betonút melletti: Igen
Közvilágítás: Van
Ingatlan tulajdoni helyzete: Saját
Figyelem az adatlap megbízónktól kapott adatok alapján készült, pontosságáért felelősséget nem tudunk vállalni!
Várnagy Krisztina
Vezető értékesítő
Értékesítői fokozat:
Értékesítői fokozat
Kép

Írjon nekem!
A siker csak rajtad múlik
A siker csak
rajtad múlik