house36

Kiváló befektetés!

K

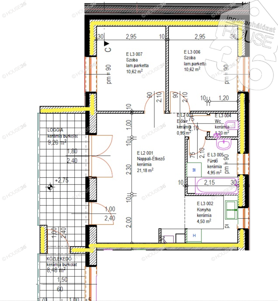
#3621420 - Kecskemét - Eladó - Lakás

Kecskeméten a Máriaváros kedvelt részén, 2022-ben épült 6 lakásos társasházban, eladó egy I. emeleti, 53 m2-es, nappali + 2 szobás lakás egy 10,7 m2-es loggia-val.

Egyéb jellemzők:

- energetikai besorolás A++
- 30 cm tégla + 15 cm szigetelés
- műanyag nyílászárók
- egyedi beépítettt konyhabútor gépekkel
- szobákban lamináltpadló
- klíma
- egyedi gázfűtés ( saját kazán ) + 1,5 KW napelem lakásonként
- alacsony rezsi
- azonnal költözhető!!!
- garázs vásárlási opció (+ 11 Mft.)
- A tulajdonos kérésére az ingatlan bemutatása egy személyes konzultáció után történik, ahol részletes tájékoztatást kaphat az ingatlan paramétereiről és egyéb kényelmi szolgáltatásairól.
-Figyelem az alaprajz és az adatlap a megbízónktól kapott adatok alapján készült, pontosságáért felelősséget nem tudunk vállalni!

- A hirdetésben szereplő képek az eredeti fotók mesterséges intelligenciával javított változatai. A képek a jobb láthatóság érdekében kerültek feljavításra.

 


Nincs megjeleníthető értékelés.
Ügyvitel: Eladó
Ingatlan típusa: Lakás
Lakás altípus: Tégla
Építési mód: Tégla
Homlokzati szig.: 15 cm
Fűtési mód: Gázfűtés (cirkó), Elektromos napelemmel, Klíma
Ingatlan állapota: Újszerű
Tájolás lakóingatlannál: K-NY
Parkolási lehetőségek: Utcán
Közművek: Összközmű
Energetikai besorolás: A++
Társasházban lévő em. száma: 2
Emelet: 1
Alapterület: 53 m2
Erkély: igen
Erkélyek területe: 10.7 m2
Szobák száma: 3 db
Fürdőszobák száma: 1 db
Építés éve: 2022
Pince van: ---
Tetőfedés anyaga: Cserép
Tetőtér beépíthető: ---
Nyílászárók fajtája: Műanyag
Közös költség: 12000/hó
Extrák: Klíma, Elektromos kapu, Napelem
Közvilágítás: Van
Ingatlan tulajdoni helyzete: Saját
Figyelem az adatlap megbízónktól kapott adatok alapján készült, pontosságáért felelősséget nem tudunk vállalni!
Márkli Csaba
Vezető értékesítő
Értékesítői fokozat:
Értékesítői fokozat
Kép Kép Kép Kép Kép
Ügyfél értékelés:
4.7 (43 értékelés alapján)

Kereső ügyfél

2025.12.01.

Kereső ügyfél

2025.03.28.

Megbízó

2024.12.07.

Megbízó

2024.12.07.

Megbízó

2024.11.17.

Megbízó

2024.11.15.

Megbízó

2024.11.14.

Megbízó

2024.11.13.

Kereső ügyfél

2022.04.07.

Kereső ügyfél

2021.11.06.

Kereső ügyfél

2021.08.04.

Megbízó

2020.12.25.

Kereső ügyfél

2020.06.23.

Kereső ügyfél

2020.04.01.

Megfelelő szakmai ismeret, korrekt hozzáállás.

Kereső ügyfél

2020.03.16.

Lelkiismeretes és felkészült! Minden helyzetben a megoldásra törekszik! Az ügyfél igényeit szem előtt tartva cselekszik! Köszönjük!

Kereső ügyfél

2020.03.09.

Felkészültség, pontosság.

Kereső ügyfél

2020.03.02.

Szuper értékesítő , jól félkészűlt.Megbízható, pontos.

Kereső ügyfél

2020.02.04.

Kereső ügyfél

2020.01.17.

Kereső ügyfél

2020.01.13.

Megbízó

2019.12.30.

Maximális udvariasság és korrekt kiszolgálás. Időközönkénti tájékoztatás , szerződéskötéskor nincsenek apróbetűs buktatók ami kellemetlenül érintené az ügyfelet utólag. Nem egyszerű ügyféllel áll szemben Csaba amit nagyon jól tud kezelni. . Sok sikert kívánok ezúttal is az üzleti és a magánéletben.

Kereső ügyfél

2019.09.24.

Kereső ügyfél

2019.09.18.

Kereső ügyfél

2019.08.01.

Csaba türelmes és bölcs ember. Tisztelem. A munkája is ehhez mért.

Megbízó

2019.06.27.

Ügyfelei igényét maximálisan teljesíti, nem tolakodó, őszinte, udvarias, pontos.

Kereső ügyfél

2019.05.23.

Kereső ügyfél

2019.04.03.

Előzékeny udvarias, megbízható.

Kereső ügyfél

2019.04.03.

Előzékeny udvarias, megbízható.

Kereső ügyfél

2019.03.20.

Márkli Csaba nagyon segítőkész, korrekt értékesítő.

Kereső ügyfél

2019.03.03.

Kereső ügyfél

2019.02.26.

Kereső ügyfél

2019.02.14.

Kereső ügyfél

2019.02.12.

udvarias,segítőkész fiatalember!

Kereső ügyfél

2019.02.08.

Kereső ügyfél

2019.02.04.

Kereső ügyfél

2019.02.04.

Megbízó

2019.01.14.

Kereső ügyfél

2018.05.15.

Korrekt,segitőkész.,széleskörű tájékoztatót kaptunk az ingatlanról. Köszönjük.

Kereső ügyfél

2018.04.04.

Csak a legmagasabb felsőfokon tudom értékelni Csaba hozzáállását: megbízhatóság, pontosság, szavahihetőség, hatékonyság, maximális empátia, céltartás, segítőkészség,..hát sokáig tudnám még sorolni, csak az egy percből lassan kifutok.

Kereső ügyfél

2018.03.10.

Csaba nagyon készséges, felkeszült, minden információt elmondott amit tudni akartunk.

Kereső ügyfél

2017.12.20.


Írjon nekem!
A siker csak rajtad múlik
A siker csak
rajtad múlik