house36

Fejezze be saját ízlésére!

K

#3621345 - Fülöpjakab - Eladó - Ház

Új
Kizárólagos
megbízás
Ár: 29.9 M Ft
 
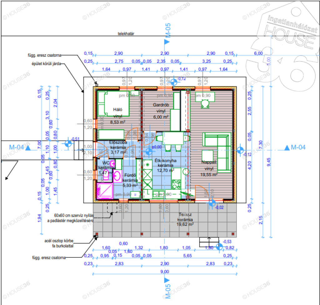
Fülöpjakab szélén, épülő új házak társaságában eladó egy 54 m2-es, 2 és fél szobás, könnyűszerkezetes, befejezésre váró ház, 610 m2-es telken!  A cél egy A+ energetikával rendelkező, modern elrendezésű, új ház, ami az M5 autópálya felhajtótól 4 km-re található. Építési hitel felvételére alkalmas az ingatlan!  KB 70 %-os készültségi fok!
Ami már készen van:
       -a villanyvezeték rendszer kiépítve-H tarifa
       -víz bevezetve, villanybojler felszerelve
       -házi bio szennyvíztisztítóba csatorna kivezetve
       -műanyag nyílászárók behelyezve
       -a terület 3 oldala bekerítve
Amit még meg kell valósítani:
       -hidegburkolás
       -homlokzati szigetelés /25 cm/
       -klímák felszerelése
       -festés
       -terasz betonozása
Amennyiben az ingatlan felkeltette az érdeklődését illetve eladó vagy kiadó ingatlana van forduljon hozzám bizalommal.
                                                   Kereső ügyfeleinknek szolgáltatásunk ingyenes!

FIGYELEM! Az adatok Megbízónktól kapott adatok alapján készült, pontosságáért felelősséget nem tudunk válla


Nincs megjeleníthető értékelés.
Ügyvitel: Eladó
Ingatlan típusa: Ház
Ház altípus: Családi ház
Építési mód: Könnyűszerkezetes
Homlokzati szig.: 25 cm
Fűtési mód: Elektromos
Ingatlan állapota: Új
Parkolási lehetőségek: Gépkocsi beálló
Közművek: Villany, Városi víz
Energetikai besorolás: A+
Alapterület: 54 m2
Telek területe: 610 m2
Erkély: nem
Szobák száma: 3 db
Fürdőszobák száma: 1 db
Építés éve: 2026
Pince van: Nincs
Esztétikai felújítások: Burkolatcsere, Konyhabútorcsere, Fürdőszoba felújítás, Festés
Műszaki felújítások: Vezetékcsere, Nyílászárócsere, Tetőcsere, Szigetelés, Fűtéskorszerűsítés
Tetőfedés anyaga: Lemez (lindab)
Födém szig.: 20 cm
Tetőtér beépíthető: Nem
Nyílászárók fajtája: Műanyag
Extrák: Klíma
Betonút melletti: Nem
Közvilágítás: Nincs
Földút hossza kb (betonúttól): 400 m
Buszmegálló távolsága kb: 450 m
Bolt távolsága kb: 1000 m
Iskola/óvoda távolsága: 1000 m
Ingatlan tulajdoni helyzete: Saját
Figyelem az adatlap megbízónktól kapott adatok alapján készült, pontosságáért felelősséget nem tudunk vállalni!
Gál Tünde
Vezető értékesítő
Értékesítői fokozat:
Értékesítői fokozat
Kép Kép
Ügyfél értékelés:
4.9 (135 értékelés alapján)

Kereső ügyfél

2026.04.03.

Gyors,precíz segítőkész értékesítő!

Megbízó

2026.02.24.

Kereső ügyfél

2026.01.10.

Megbízó

2025.12.23.

Megbízó

2025.12.16.

Megbízó

2025.11.11.

Megbízható, precíz

Kereső ügyfél

2025.09.22.

Megbízó

2025.09.17.

Még jóbb nem lehet.

Megbízó

2025.09.05.

Kereső ügyfél

2025.08.29.

Nagyon kedves, segítőkész és azonnal reagált.

Kereső ügyfél

2025.08.27.

Kereső ügyfél

2025.07.02.

Egy nagyon színpatikus, közvetlen, látszik, hogy fontos mindkét fél az eladó és a vevő is. A mi ingatlanunkat közel két hónap alatt eladta. Mindent köszönünk Tündi!!????????

Kereső ügyfél

2025.06.17.

A kérésemre az általam kért időpontban rendelkezésemre állt.

Kereső ügyfél

2025.06.17.

Kereső ügyfél

2024.12.09.

Kereső ügyfél

2024.11.15.

Kereső ügyfél

2024.10.31.

Kereső ügyfél

2024.10.29.

Kereső ügyfél

2024.10.28.

Kereső ügyfél

2024.09.12.

Kereső ügyfél

2024.07.23.

Nagyon kedves, segítőkész és mosolygós értékesítő. Bátran ajánlom bárkinek.

Kereső ügyfél

2024.07.23.

Kereső ügyfél

2024.05.25.

Kereső ügyfél

2024.05.22.

Kereső ügyfél

2024.05.21.

Megbízó

2024.04.30.

Kereső ügyfél

2024.04.17.

Mindennel tökéletesen elégedett voltam, így különösen a személyes találkozások időpont egyeztetésével és az ingatlanok felkeresésének megszervezésével, az információk pontos átadásával.

Kereső ügyfél

2024.03.05.

Kereső ügyfél

2024.02.22.

Kereső ügyfél

2024.02.21.

Kereső ügyfél

2024.02.19.

Kereső ügyfél

2024.02.14.

Kereső ügyfél

2024.02.14.

Kereső ügyfél

2024.01.31.

Kereső ügyfél

2024.01.02.

Kereső ügyfél

2023.11.21.

Segítőkész, a legrövidebb időn belül és bármikor, még hétvégén is.

Kereső ügyfél

2023.07.25.

Kereső ügyfél

2023.07.25.

Kereső ügyfél

2023.06.21.

Megbízó

2023.06.20.

Kereső ügyfél

2023.05.02.

Megbízó

2023.04.25.

Kereső ügyfél

2023.03.28.

Nagyon megvoltam vele elégedve, kedves segítőkész volt.

Kereső ügyfél

2023.03.17.

Tökéletes volt minden, előbb érkezett mint mi, mindenre kiterjedt a figyelme, precíz,korrekt tájékoztatást adott, mutatott. Profi volt.

Megbízó

2023.03.16.

Megbízó

2023.02.26.

Szakszerűségével, korrektségével minden alkalommal eredményesen, precízen segít adásvétel vagy bérbeadás esetén is. Ajánlani tudom a kommunikációja és közvetlen stílusa alapján is. dr.kiss katalin

Megbízó

2023.02.15.

Kereső ügyfél

2023.01.23.

Rendszeresen kapom az eladó házakat,telkeket.Sajnos még nem találtunk megvételre megfelelőt.

Kereső ügyfél

2023.01.05.

Megbízó

2022.12.29.

Kereső ügyfél

2022.11.03.

Kereső ügyfél

2022.09.14.

Rendkívül kommunikatív,segítőkész,közvetlen.

Kereső ügyfél

2022.09.09.

Kereső ügyfél

2022.08.31.

Megbízó

2022.07.22.

Korrekt,minden részletre kiterjedően tájékozott, a megbeszéltek szerint képviseli az ügyfél érdekeit. Mindenkinek ajánlani tudom. Kiss Katalin

Kereső ügyfél

2022.07.04.

Már többször voltam kapcsolatban ingatlan közvetítőkkel, ezért van összehasonlítási alapom. Ezek alapján értékelem Gál Tündét. Gál Tünde komoly, megbízható, minden szavában korrekt, segítőkész. Ésszerű magyarázatokkal, érvekkel tartja meg a vevőt és az eladót is. Mindkét oldalról volt szerencsém kapcsolatban lenni vele. További sok sikert kívánok neki! Üdvözlettel: Szabóné Andi

Kereső ügyfél

2022.05.30.

Kereső ügyfél

2022.05.09.

Kereső ügyfél

2022.04.28.

Kereső ügyfél

2022.04.28.

Kereső ügyfél

2022.04.28.

Megbízó

2022.04.11.

Kereső ügyfél

2022.03.26.

Kereső ügyfél

2022.03.25.

Kereső ügyfél

2022.02.03.

Segítőkész, kedves. A megbeszélt időpontban a helyszínen volt. Reszletes tájékozotatást kaptunk az ingatlanról

Kereső ügyfél

2022.01.19.

Kereső ügyfél

2022.01.18.

Kereső ügyfél

2021.12.03.

Tündi nagyon kedves segítőkész ! Csak ajánlani tudom!????????????

Megbízó

2021.11.30.

Kereső ügyfél

2021.11.04.

Kereső ügyfél

2021.07.15.

Kereső ügyfél

2021.07.12.

Kereső ügyfél

2021.07.03.

Kereső ügyfél

2021.06.22.

Kereső ügyfél

2021.06.15.

Kereső ügyfél

2021.05.18.

Megbízó

2021.05.13.

Kereső ügyfél

2021.05.10.

Kereső ügyfél

2021.05.07.

Kedves, segítőkész!

Kereső ügyfél

2021.05.03.

Kereső ügyfél

2021.04.24.

Mindennel megvoltunk elégedve rendben volt minden.

Megbízó

2021.04.24.

.Korrekt kapcsolattartás, segítőkészség jellemzi. Kedves, megnyerő személyiség

Kereső ügyfél

2021.04.02.

Kedves volt, pontos és jól tájékozott az ingatlannal kapcsolatban.

Megbízó

2021.03.15.

Kereső ügyfél

2021.02.17.

Mindennel teljes mértékben meg voltunk elégedve. Teljes mértékben segítőkész és informált. Minden kerésünkre figyelt és a legjobb ingatlanokat mutatta amiket lehetett. Csak ajánlani tudom mindenkinek.

Kereső ügyfél

2020.11.26.

Nagyon kedves segítőkész, precíz pontos !

Kereső ügyfél

2020.10.26.

Maximálisan felkészült volt az ingatlanokból.

Kereső ügyfél

2020.10.21.

Kereső ügyfél

2020.09.21.

Megbízó

2020.09.07.

Kereső ügyfél

2020.09.02.

Nagyon kedves, baratsagos es felkeszült ingatlanközvetitö. Kellemes volt vele megtekinteni az ingatlanokat. Szivesen maskor is.

Kereső ügyfél

2020.08.28.

Megbízó

2020.06.24.

Kereső ügyfél

2020.06.23.

Nagyon kedves ,pontos ,segítőkész Tündike !

Kereső ügyfél

2020.06.02.

Az ingatlaniroda értékesítője, megfelelő felkészültséggel, információval, alternatív lehetőségek felkínálásával,ügyfélbarát magatartással segítette az adott ingatlan bemutatását számunkra.

Kereső ügyfél

2020.05.13.

Teljesen elégedett vagyok! Minden információt megkaptam amire kíváncsi voltam!

Kereső ügyfél

2020.02.18.

Kereső ügyfél

2020.02.05.

Kereső ügyfél

2020.01.30.

Nagyon kedves a hölgy, mindent megmutatott és elmondott amit csak lehet

Kereső ügyfél

2020.01.04.

Kereső ügyfél

2019.11.18.

Kereső ügyfél

2019.10.17.

Kereső ügyfél

2019.10.10.

Kereső ügyfél

2019.09.27.

Az ingatlanértékesítővel nagyon meg voltam elégedve, közvetlen, barátságos, türelmes és segítőkész volt.

Kereső ügyfél

2019.08.05.

Kereső ügyfél

2019.08.03.

Kereső ügyfél

2019.07.18.

Maximálisan segítőkész.

Kereső ügyfél

2019.06.25.

Rugalmas, segítőkész. Persze nem utolsó sorban tud mindent az ingatlanokról.

Kereső ügyfél

2019.06.09.

Kereső ügyfél

2019.05.22.

Kereső ügyfél

2019.04.09.

Kereső ügyfél

2019.04.08.

Kereső ügyfél

2019.04.03.

Megvagyok elègedve a szolgáltatással.

Kereső ügyfél

2019.02.04.

Kereső ügyfél

2019.01.30.

Megbízó

2019.01.14.

Kereső ügyfél

2018.12.06.

Kereső ügyfél

2018.10.08.

A közvetítő nagyon tájékozott és figyelembe veszi az én igényeimet és elvárásaimat.

Kereső ügyfél

2018.08.17.

Kereső ügyfél

2018.08.16.

Az ingatlanértékesítő hölgy munkájával nagyon meg voltam elégedve.

Kereső ügyfél

2018.08.09.

Nagyon megvoltam elégedve. Kedves, talpraesett, figyelembe veszi az igényeimet.

Kereső ügyfél

2018.08.03.

Kereső ügyfél

2018.07.17.

Teljes megelégedésemre szolgált az,hogy az általa bemutatott ingatlanról teljes körű tájékoztatást adott. Ügyfél centrikus,kedves,csak pozitív tapasztalataim voltak.

Megbízó

2018.07.13.

Tiszteletem! Gál Tünde Ingatlanértékesítő munkájával minden szempontból elégedett vagyok. Kedves,igényes,kérdéseimre rendszeresen kitűnő válaszokat ad. Az ügyfeleket akiket hoz,kielégítően prezentálja,mindent megmutat nekik,és ezzel megkönnyíti az én helyzetem. További Sok Sikert Kívánok neki. Mné.

Kereső ügyfél

2018.07.06.

Kereső ügyfél

2018.06.25.

Megbízó

2018.06.11.

Megbízó

2018.05.14.

Kereső ügyfél

2018.04.12.

Kollégájukban egy szimpatikus embert ismertem meg. Nagyon kedvesen és segítőkészen fogadott. A házat úgy mutatta be ahogy nekünk megfelelt. Minden kérdésünkre válaszolt. Általa megtaláltuk a számunkra megfelelő otthonunkat. Munkájához további sok sikert kívánok.

Megbízó

2018.04.12.

Megbízó

2018.04.11.

Kereső ügyfél

2018.02.03.

Kereső ügyfél

2018.01.04.

Kereső ügyfél

2018.01.02.


Írjon nekem!
A siker csak rajtad múlik
A siker csak
rajtad múlik