house36

Vintage hangulatú családi ház - Gerjen, Tolna megye.

K

#3621330 - Gerjen - Eladó - Ház

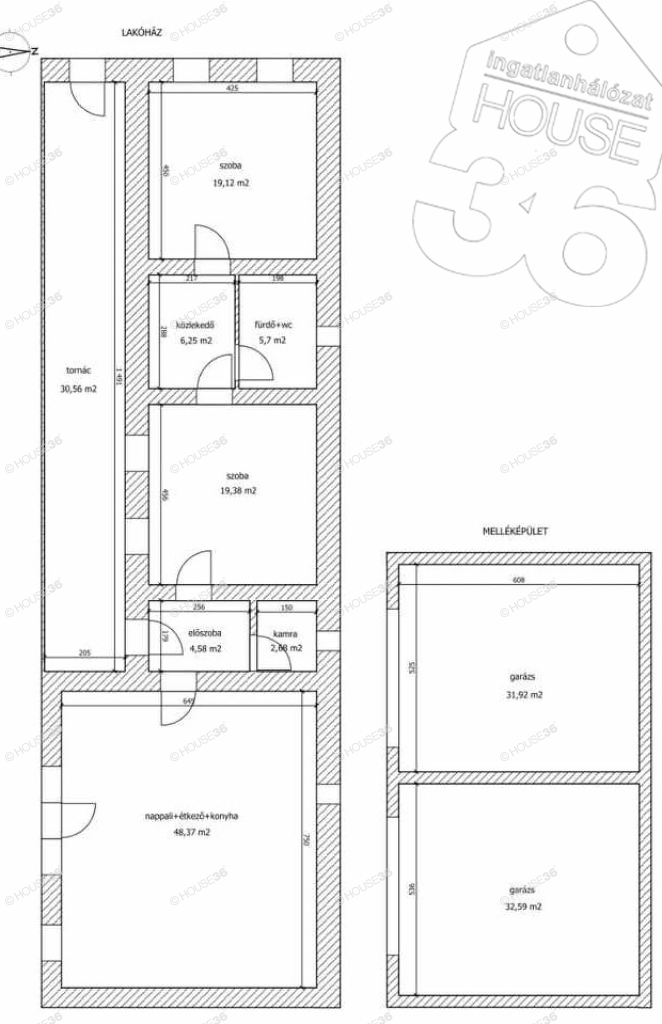
Az ingatlan vegyes falazatú, teljesen víz szigetelt ház, 2021-ben teljes körű felújításon esett át: új gipszkarton burkolat, korszerű nyílászárók – az otthon modern és energiatakarékos. A teljes lakótér 106,4 m2.

Az elrendezés kényelmes és praktikus:
    ∙    Tágas nappali kőburkolattal és kandallóval
    ∙    2 további szoba meleg hangulatú hajópadlóval
    ∙    Fürdőszoba kőburkolattal

A fűtésről Baxi gázkazán gondoskodik, amelyet elektromos padlófűtés egészít ki. Nyáron a beépített légkondicionáló biztosítja a kellemes hőmérsékletet – télen és nyáron egyaránt kényelmes az élet ebben az otthonban.

Az ingatlan 754 m2-es telekrészen terül el, a teljes telek 1421 m²-es, két helyrajzi számon nyilvántartott dupla telek (a másik 667 m²). A telkek megosztása az eladás feltételei között egyeztethető.

Gerjen az elmúlt években jelentős fejlődésen ment át: új utak épültek, és átadták az új kalocsai Duna-hidat, amely komolyan felértékeli a térség közlekedési és gazdasági lehetőségeit. A közeli Paks (Paksi Atomerőmű, épülő Paks II.), valamint Szekszárd és Kalocsa gyors elérhetősége miatt a terület vonzereje folyamatosan nő.

A HOUSE36 kínálatában található összes ingatlannal kapcsolatban tudok felvilágosítást nyújtani!
További képekért és információért hívjon bizalommal!
Szolgáltatásaink Kereső ügyfeleink számára INGYENESEK! Amennyiben ELADÓ INGATLANA VAN, vagy FINANSZÍROZÁSI MEGOLDÁST KERES, hívjon, megtaláljuk a legjobb lehetőséget! HITELSPECIALISTÁNK MINDENBEN SEGÍT, irodánkban ez a szolgáltatás INGYENES!

Figyelem az adatlap megbízónktól kapott adatok alapján készült, pontosságáért felelősséget nem tudunk vállalni!

Nincs megjeleníthető értékelés.
Ügyvitel: Eladó
Ingatlan típusa: Ház
Ház altípus: Családi ház
Építési mód: Vegyes falazat
Fűtési mód: Cserépkályha, Padlófűtés, Klíma
Ingatlan állapota: Jó
Tájolás lakóingatlannál: K-NY
Parkolási lehetőségek: Dupla garázs, Gépkocsi beálló, Utcán
Közművek: Összközmű
Energetikai besorolás: C
Alapterület: 106.4 m2
Telek területe: 754 m2
Erkély: nem
Terasz(ok) területe: 30.6 m2
Szobák száma: 3 db
Fürdőszobák száma: 1 db
Építés éve: 1963
Felújítás éve: 2022
Pince van: Van
Pince területe: 15 m2
Esztétikai felújítások: Burkolatcsere, Konyhabútorcsere, Fürdőszoba felújítás, Festés
Műszaki felújítások: Nyílászárócsere, Szigetelés, Fűtéskorszerűsítés
Tetőfedés anyaga: Cserép
Födém szig.: 40 cm
Tetőtér beépíthető: Nem
Nyílászárók fajtája: Fa, Műanyag, Szúnyoghálóval ellátva
Ingatlanon belüli lakószintek száma: 1 db
Melléképületek száma: 1 db
Melléképületek területe: 64.5 m2
havi vagy éves gázszámla (fűtésköltség): 40.000Ft/hó
Extrák: Klíma
Betonút melletti: Igen
Közvilágítás: Van
Földút hossza kb (betonúttól): 0 m
Buszmegálló távolsága kb: 300 m
Bolt távolsága kb: 250 m
Iskola/óvoda távolsága: 250 m
Ingatlan tulajdoni helyzete: Saját
Figyelem az adatlap megbízónktól kapott adatok alapján készült, pontosságáért felelősséget nem tudunk vállalni!
Kurnász Lilla
Ingatlanértékesítő

Írjon nekem!
A siker csak rajtad múlik
A siker csak
rajtad múlik