house36

Kecskeméthez közel újépítésű házak még elérhetőek!

K

#3621034 - Kecskemét - Eladó - Ház

Ár: 67 M Ft
 
Kecskeméthez közel újépítésű házak még elérhetőek!
 
Kecskemét központjától rövid úton megközelíthető családi házak eladók!
 
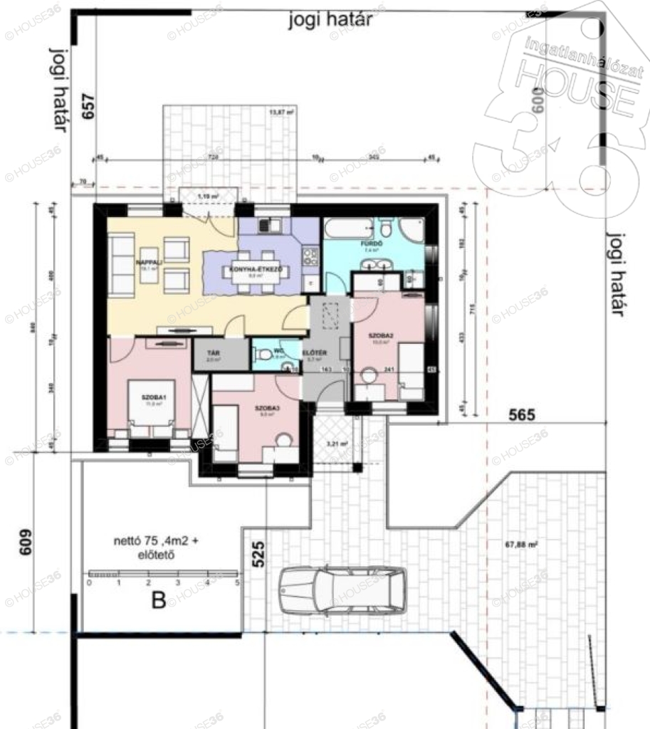
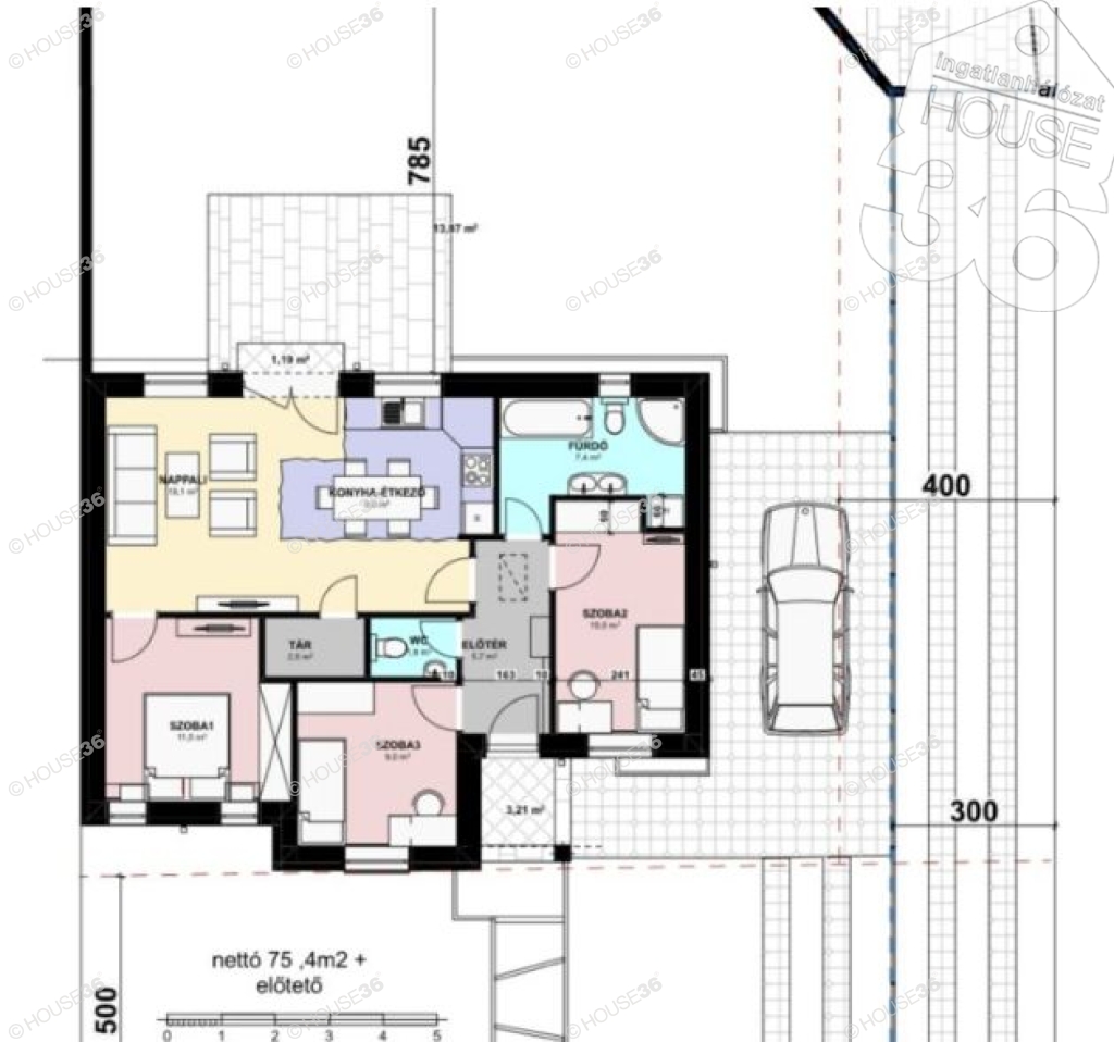
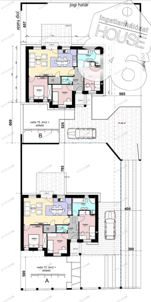
Kiváló elhelyezkedésű környéken kínáljuk ezt a 75 m2-es, nappali + 3  szobás magas minőségű családi házat 400 m2-es telken.
 
Paraméterek:
- nappali + 3 szoba
- nettó 75 m2
- Wienerberger Porotherm tégla ( + 40% hőtartás)
- egyedi gáz-cirkó fűtés padlófűtéssel kombinálva
- klíma
- prémium minőségű műanyag nyílászárók
- szaniterek 1 millió forintig az árban
- hideg - meleg burkolatok 9,000.-/ m2
- ár garancia
- idő garancia
- várható átadás szerződéskötéstől számított 8-10 hónap
- módosítható tervek
 
Az ár az építési telek árát is tartalmazza!
 
CSAK NÁLUNK KERESSE!
​ 
RÉGI MEGY, ÚJ JÖN? KERESSEN BIZALOMMAL!! SEGÍTEK MEGOLDANI!!
 
Figyelem, az adatlap megbízóinktól kapott adatok alapján készültek, pontosságáért felelősséget nem tudunk vállalni!
A HOUSE36 kínálatában található összes ingatlannal kapcsolatban tudok felvilágosítást nyújtani.
Szolgáltatásaink ügyfeleink részére díjmentesek!
Nincs megjeleníthető értékelés.
Ügyvitel: Eladó
Ingatlan típusa: Ház
Ház altípus: Családi ház
Építési mód: Tégla
Homlokzati szig.: 15 cm
Fűtési mód: Gázfűtés (cirkó), Padlófűtés, Klíma
Ingatlan állapota: Új
Parkolási lehetőségek: Gépkocsi beálló
Közművek: Összközmű
Energetikai besorolás: A+
Alapterület: 75 m2
Telek területe: 400 m2
Erkély: nem
Szobák száma: 4 db
Fürdőszobák száma: 1 db
Építés éve: 2026
Pince van: ---
Tetőfedés anyaga: Cserép
Födém szig.: 30 cm
Tetőtér beépíthető: Nem
Nyílászárók fajtája: Műanyag
Ingatlanon belüli lakószintek száma: 1 db
Extrák: Klíma
Betonút melletti: Igen
Közvilágítás: Van
Ingatlan tulajdoni helyzete: Saját
Figyelem az adatlap megbízónktól kapott adatok alapján készült, pontosságáért felelősséget nem tudunk vállalni!
Várnagy Krisztina
Vezető értékesítő
Értékesítői fokozat:
Értékesítői fokozat
Kép

Írjon nekem!
A siker csak rajtad múlik
A siker csak
rajtad múlik