house36

SOLTVADKERT KÖZPONTJÁBAN 8 LAKÁSOS TÁRSASHÁZZÁ ALAKÍTHATÓ ÉPÜLET ELADÓ!

K

#3620971 - Soltvadkert - Eladó - Ház

Ár: 120 M Ft
 
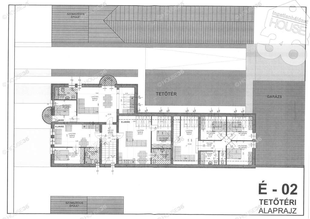
Soltvadkert központjában, 920 m2 telekterületen az 1990-es években épült, tégla falazatú, két szintes, 8 lakásos lakóépület eladó!

A lakásokban a villany- és vízvezetékek cseréje megtörtént, a padlófűtéscsövek beépítésre kerültek.

A lakások befejezése az új tulajdonosra vár, az elvégzendő munkálatok közé tartozik:

- fűtésrendszer kiépítése (kazánok telepítése);
- homlokzat hőszigetelése;
- az emeleti lakásoknál mennyezet kialakítása, erkélyek befejezése;
- a lakásokban: belső nyílászárók beépítése, burkolatok, szaniterek, vizes- és elektromos szerelvényezés, bútorozás, festés;
- udvar füvesítése/térkövezése;
- további fedett gépkocsibeállók kiépítése.

Ezt az ingatlant - az újjáalakított, modern lakások hatékonyabb értékesíthetőségére tekintettel - elsősorban befektetők, generálkivitelezők részére ajánlom.

Figyelem! Az adatlap megbízóinktól kapott adatok alapján készült, pontosságáért felelősséget nem tudunk vállalni!
 
Amennyiben a hirdetés felkeltette érdeklődését, illetve eladó vagy kiadó ingatlana van, forduljon hozzám bizalommal. Szolgáltatásaink kereső ügyfeleink részére díjmentesek!

A tulajdonos kérésére az ingatlan bemutatása egy személyes konzultáció után történik, ahol részletes tájékoztatást kaphat az ingatlan paramétereiről és dokumentációjáról.
Nincs megjeleníthető értékelés.
Ügyvitel: Eladó
Ingatlan típusa: Ház
Ház altípus: Családi ház
Építési mód: Tégla
Fűtési mód: Padlófűtés
Ingatlan állapota: R.felújított
Tájolás lakóingatlannál: D-K
Parkolási lehetőségek: Gépkocsi beálló, Fedett gépkocsi beálló, Utcán
Közművek: Csatorna, Gáz, Villany, Városi víz
Alapterület: 372 m2
Telek területe: 920 m2
Erkély: igen
Erkélyek területe: 4 m2
Szobák száma: 10 db
Fürdőszobák száma: 8 db
Építés éve: 1995
Felújítás éve: 2021
Pince van: Nincs
Műszaki felújítások: Vezetékcsere, Nyílászárócsere, Fűtéskorszerűsítés
Tetőfedés anyaga: Cserép
Tetőtér beépíthető: Igen
Nyílászárók fajtája: Fa
Ingatlanon belüli lakószintek száma: 2 db
Betonút melletti: Igen
Közvilágítás: Van
Buszmegálló távolsága kb: 100 m
Bolt távolsága kb: 100 m
Iskola/óvoda távolsága: 600 m
Ingatlan tulajdoni helyzete: Saját
Figyelem az adatlap megbízónktól kapott adatok alapján készült, pontosságáért felelősséget nem tudunk vállalni!
Dr. Szabó Gyula
Ingatlanértékesítő
Ügyfél értékelés:
5 (29 értékelés alapján)

Kereső ügyfél

2026.05.06.

Megbízó

2026.05.05.

Kereső ügyfél

2026.03.02.

Nagyon elégedettek vagyunk !

Kereső ügyfél

2026.03.02.

Korrekt tájékoztatás, vásárló igényeit maximálisan megpróbálja kielégíteni.

Megbízó

2026.03.01.

Nagyon közvetlen, körültekintő, alapos felmérést végzett, részletesen tájékoztatott a lehetőségekről. Sikeres értékesítésben reménykedünk. Köszönjük eddigi tevékenységét.

Megbízó

2026.02.19.

Megbízó

2026.02.04.

Megbízó

2026.01.30.

Megbízó

2026.01.24.

Megbízó

2026.01.16.

Megbízó

2026.01.13.

Megbízó

2026.01.05.

Megbízó

2025.12.03.

Precíz,pontos,türelmes, segítőkész, személy.Mindent átbeszèltünk,szakmailag felkészült!

Megbízó

2025.10.11.

Megbízó

2025.09.06.

Megbízó

2025.08.23.

Megbízó

2025.08.05.

Megbízó

2025.07.23.

Megbízó

2025.06.26.

Kereső ügyfél

2025.06.19.

Dr. Gyula Szabo, ist ein super netter Mensch. Wir waren sehr zufrieden mit ihm und seiner Arbeit

Kereső ügyfél

2025.05.28.

Reális volt a tájékoztató kiemelve az előnyöket és nem tikolva a hátrányokat.Minden kérdésre részletes választ kaptunk.

Kereső ügyfél

2025.05.28.

Reális volt a tájékoztató kiemelve az előnyöket és nem tikolva a hátrányokat.Minden kérdésre részletes választ kaptunk.

Kereső ügyfél

2025.05.28.

Reális volt a tájékoztató kiemelve az előnyöket és nem tikolva a hátrányokat.Minden kérdésre részletes választ kaptunk.

Kereső ügyfél

2025.05.28.

Reális volt a tájékoztató kiemelve az előnyöket és nem tikolva a hátrányokat.Minden kérdésre részletes választ kaptunk.

Kereső ügyfél

2025.05.28.

Reális volt a tájékoztató kiemelve az előnyöket és nem tikolva a hátrányokat.Minden kérdésre részletes választ kaptunk.

Kereső ügyfél

2025.05.15.

Nagyon segítőkész, közvetlen és barátságos. Munkáját maximálisan felkészülten és 100%-osan látja el. Örülök, hogy megismertem.


Írjon nekem!
A siker csak rajtad múlik
A siker csak
rajtad múlik