house36

Lakitelek-Tőserdőn eladó fűthető hétvégi ház lakóingatlannak is!

K

#3620662 - Lakitelek - Eladó - Nyaraló

Új
Kizárólagos
megbízás
Ár: 28.9 M Ft
 
Eladó hétvégi ház Lakitelek-Tőserdő központjában! 
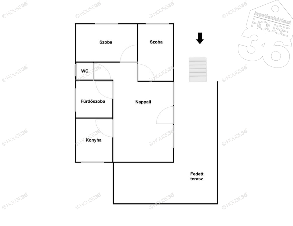
Lakitelek közkedvelt részén, Tőserdő központjában eladó egy tégla építésű, nappali + 2 félszobás hétvégi ház, amely fűtött, így akár lakóingatlannak is kiválóan alkalmas. A 396 m2-es telken elhelyezkedő ingatlan 35 m2-es lakóteret, valamint 15 m2 fedett teraszt és pincét kínál, kellemes, gondozott környezetben.
 
Főbb jellemzők:
- Tégla építésű, jó állapotú ház
- Nappali + 2 félszoba elosztás
- Konvektoros fűtés
- Fa nyílászárók szúnyoghálóval
- 15 m2 fedett terasz
- Pince és kerti sütögető
- 396 m2-es telek
- közművek: villany, gáz, városi víz, fúrt kút
 
Az ingatlan „hétvégi ház” megjelölésű, ezért lakáshitelre nem alkalmas.
 
Képzelje el, ahogy Tőserdő csendes, zöld környezetében pihen, mindössze néhány lépésre a központtól, mégis természetközelben. Ez a hangulatos, tégla építésű hétvégi ház nemcsak nyaralásra, hanem akár egész éves lakhatásra is alkalmas – ahol a nyugalom és a kényelem találkozik.
 
Ne maradjon le erről a ritka lehetőségről! Ha Ön is egy rendezett, jól megközelíthető, de mégis természetközeli ingatlant keres Lakiteleken, keressen bizalommal, és tekintse meg személyesen ezt a bájos házat Tőserdő szívében.
Figyelem az adatlap megbízónktól kapott adatok alapján készült, pontosságáért felelősséget nem tudunk vállalni!
​Amennyiben eladó-kiadó ingatlana van, vagy finanszírozási megoldást keres, hívjon, megtaláljuk a legjobb lehetőséget önnek!
A HOUSE36 kínálatában található összes ingatlannal kapcsolatban tudok felvilágosítást nyújtani!
Hívjon bizalommal!
Szolgáltatásaink Kereső ügyfeleink számára INGYENESEK! 
Nincs megjeleníthető értékelés.
Ügyvitel: Eladó
Ingatlan típusa: Nyaraló
Nyaraló altípus: Hétvégi házas
Építési mód: Tégla
Fűtési mód: Héra/konvektor
Ingatlan állapota: Átlagos
Parkolási lehetőségek: Gépkocsi beálló
Közművek: Gáz, Villany, Városi víz, Fúrtkút
Alapterület: 35 m2
Telek területe: 396 m2
Erkély: nem
Terasz(ok) területe: 15 m2
Szobák száma: 3 db
Fürdőszobák száma: 1 db
Építés éve: 1979
Felújítás éve: 2022
Pince van: Van
Pince területe: 5 m2
Esztétikai felújítások: Festés
Műszaki felújítások: Tetőcsere, Szigetelés
Tetőfedés anyaga: Cserép
Homlokzati szig.: 0 cm
Födém szig.: 0 cm
Tetőtér beépíthető: ---
Nyílászárók fajtája: Fa, Szúnyoghálóval ellátva
Extrák: Kerti sütögető/szaletli
Betonút melletti: Nem
Földút hossza kb (betonúttól): 100 m
Buszmegálló távolsága kb: 500 m
Bolt távolsága kb: 500 m
Iskola/óvoda távolsága: 2000 m
Közvilágítás: Van
Ingatlan tulajdoni helyzete: Saját
Figyelem az adatlap megbízónktól kapott adatok alapján készült, pontosságáért felelősséget nem tudunk vállalni!
Borosné Hajnalka
Vezető értékesítő
Értékesítői fokozat:
Értékesítői fokozat
Kép Kép
Ügyfél értékelés:
4.9 (126 értékelés alapján)

Megbízó

2026.04.14.

Kereső ügyfél

2026.03.25.

Nagyon meg vagyok elégedve a Barosnè Hajnalka vezető értékesítő kedves és professzionális ajánlataival .

Kereső ügyfél

2026.02.09.

Kereső ügyfél

2026.02.09.

Gyorsan reagál, rugalmas. Segítőkész, kedves, udvarias. Szívesen kötök vele máskor is üzletet.

Kereső ügyfél

2026.02.05.

Kereső ügyfél

2026.02.03.

Kereső ügyfél

2026.01.21.

Kereső ügyfél

2026.01.19.

Megbízó

2026.01.13.

Megbízó

2025.12.26.

Kereső ügyfél

2025.12.16.

Kereső ügyfél

2025.12.15.

Mindennel meg voltam elégedve,maximálisan! SZUPER volt!

Megbízó

2025.12.12.

Megbízó

2025.11.12.

Mindennel elégedett vagyok. Kedves, segítőkész tájékozott, körültekintő szakember a Hajnalka. Köszönöm!

Kereső ügyfél

2025.10.13.

Nagyon lelkiismeretes, megbízható, hozzáértő, kedves.

Kereső ügyfél

2025.09.30.

Nagyon hozzáértő, kedves értékesítő. Mindig segítőkész.

Kereső ügyfél

2025.09.22.

Nagyon kedves, segítőkész, megbízható. Teljes körűen tájékoztatott a telekkel kapcsolatos legfontosabb tudnivalókról, a paramétereiről és nagyvonalakban a lehetséges beépíthetőség lehetőségeiről is.

Kereső ügyfél

2025.09.17.

Gyors, rugalmas, egyértelmű.

Kereső ügyfél

2025.09.06.

Kereső ügyfél

2025.09.04.

Hajni nagyon kedves és segítőkész. Idővesztegetés nélkül és szervezetten mutatta be nekünk a kért ingatlanokat.

Kereső ügyfél

2025.08.19.

Megbízó

2025.08.11.

Megbízó

2025.07.30.

Kereső ügyfél

2025.07.18.

Borosné Hajnalka munkájával maximálisan elégedett vagyok, szorgalmas, pontos.

Kereső ügyfél

2025.07.17.

Nagyon kedves, segítőkész, felkészült!

Megbízó

2025.07.11.

Kereső ügyfél

2025.06.19.

Megbízó

2025.06.18.

Megbízó

2025.06.11.

Kereső ügyfél

2025.05.21.

Megbízó

2025.05.17.

Megbízó

2025.05.11.

Kereső ügyfél

2025.04.30.

Megbízható, rugalmas, empatikus, szívesen beszélgetek vele, kérek Tőle, fogadom el tanácsait. Minden helyzetet nyugodtan próbál koordinálni megoldani. Megnyugvás vele dolgozni, éppen a bizalom miatt!

Kereső ügyfél

2025.04.12.

Kereső ügyfél

2025.04.02.

Megbízó

2025.03.11.

Kereső ügyfél

2025.03.07.

Kereső ügyfél

2025.03.03.

Kiváló szakértelemmel intézte az üzletet! Köszönjük!

Megbízó

2025.02.10.

Kereső ügyfél

2025.01.20.

Kereső ügyfél

2025.01.02.

Megbízó

2024.12.06.

Kereső ügyfél

2024.12.02.

Kereső ügyfél

2024.11.29.

Megbízó

2024.11.26.

Kereső ügyfél

2024.11.20.

Ön egy nagyon komoly és felelősségteljes ember. nagyon szeretem. .

Kereső ügyfél

2024.11.20.

Ön egy nagyon komoly és felelősségteljes ember. nagyon szeretem. .

Kereső ügyfél

2024.11.14.

Kereső ügyfél

2024.11.07.

Megbízó

2024.10.18.

Nagyon odaadò, lelkiismeretes munkát végző értékesítő.

Kereső ügyfél

2024.10.10.

Megbízó

2024.10.09.

Kereső ügyfél

2024.09.09.

Felkészült, segítőkész, gyors, kedves!

Megbízó

2024.09.08.

Kereső ügyfél

2024.08.17.

Kereső ügyfél

2024.07.05.

Kereső ügyfél

2024.07.03.

Szeretném megköszönni neked a kimagasló hozzáértésedet és a lelkiismeretes munkádat az ingatlanügyem kapcsán. Külön hálás vagyok azért a barátságos és jóindulatú hozzáállásért, amit végig tanúsítottál. Az ügy precíz és alapos kezelése nemcsak megkönnyítette a folyamatot, hanem valóban élvezetessé is tette. Köszönöm szépen

Megbízó

2024.06.18.

Megbízó

2024.05.31.

Megbízó

2024.05.06.

Kereső ügyfél

2024.04.26.

CSAK +++++++++!

Kereső ügyfél

2024.03.28.

Kereső ügyfél

2024.03.21.

Kedves, segítő kész, rugalmas, technikailag felkészült értékesítő!

Kereső ügyfél

2024.03.09.

Megbízó

2024.03.05.

Megbízó

2024.03.05.

Kereső ügyfél

2024.02.09.

Kereső ügyfél

2024.01.22.

Kereső ügyfél

2024.01.15.

Rugalmas, intelligens, empatikus és nagyon korrekt.

Megbízó

2024.01.09.

Kereső ügyfél

2024.01.05.

Kereső ügyfél

2023.12.27.

Kereső ügyfél

2023.12.18.

Hajnalka már az elejétől kezdve nagyon segítőkész, és rugalmas volt az ingatlan bemutatásánál. A kommunikáció nagyon folyékonyan működik közöttünk, mindig mindenben áll a rendelkezésünkre, és bármilyen kérdésünkre azonnal válaszol. A mai bizonytalan világban az ilyen ingatlan szakértő mint Hajnalka ritka mint a fehér holló!

Megbízó

2023.12.03.

Kereső ügyfél

2023.11.30.

mindennel meg voltam elégedve !

Kereső ügyfél

2023.11.20.

Korrekt és rugalmas a hölgy, intelligens az ügyvezetése, türelmes és minden kérésre pozitívan reagál. Bármikor lehet hozzá fordulni bizalommal.

Kereső ügyfél

2023.11.17.

Kereső ügyfél

2023.11.09.

Kereső ügyfél

2023.11.03.

A hölgy figyelmes, segítőkész és rugalmas volt. Kommunikációja, empátiája kiváló.

Kereső ügyfél

2023.10.26.

Megbízó

2023.10.18.

Kereső ügyfél

2023.09.04.

Kereső ügyfél

2023.08.16.

Kereső ügyfél

2023.08.02.

Kereső ügyfél

2023.08.01.

Nagyon korrekt, Nagyon szuper!Csak+++++++++!!!!

Megbízó

2023.08.01.

Kereső ügyfél

2023.07.17.

+++++++++

Kereső ügyfél

2023.06.27.

Kedves, aranyos, felkészült

Kereső ügyfél

2023.06.26.

Profi!!!

Kereső ügyfél

2023.06.05.

Kereső ügyfél

2023.05.09.

Kereső ügyfél

2023.05.08.

Megbízó

2023.04.29.

Kereső ügyfél

2023.04.28.

Kedves, közvetlen,segítőkész,vidám természetű! Kellemes meglepetés!

Megbízó

2023.04.19.

Kereső ügyfél

2023.04.11.

Kereső ügyfél

2023.03.29.

Nagyon kedves,segítőkész,rugalmas,toleràns ingatlan értèkesítő!

Kereső ügyfél

2023.03.24.

Megbízó

2023.03.20.

Koszönöm a tájékoztatást ! Várom a lehetséges vevőt !

Kereső ügyfél

2023.02.23.

Megbízó

2023.02.21.

Kereső ügyfél

2023.01.31.

Rugalmas, megfelelő tájékoztatás, közvetlen, segítőkész

Kereső ügyfél

2023.01.06.

Megbízó

2022.12.22.

Kereső ügyfél

2022.12.09.

Kereső ügyfél

2022.11.05.

Kereső ügyfél

2022.10.29.

Kereső ügyfél

2022.10.26.

Megbízó

2022.10.26.

HÉVI- DOBOGÓMAJOR ELADÓ, NEM CSERSZEGTOMAJ!!!!!!!!!!!!!!!!!!!!!!!!!!!!!!!!!!!!!

Kereső ügyfél

2022.10.24.

Megbízó

2022.10.21.

LAKITELEK- TŐSERDŐ - EZ A MEGNEVEZÉS. TÉLEN, NYÁRON LAKHATÓ, GÁZFŰTÉSES. EZ IS FONTOS.

Megbízó

2022.08.26.

Kereső ügyfél

2022.08.04.

Nagyon kedves, rendkívül felkészült, tapasztalt ingatlan közvetítő.

Megbízó

2022.07.26.

Kereső ügyfél

2022.07.26.

Röviden: Segítőkész, felkészült, figyelmes.

Megbízó

2022.06.25.

Ritka segîtőkèszsègű.Nagyon sók energiát fektet a megbizàsàba.kedves,igazàn ebbe a munkakörben a helye.Ajànlom mindenkinek őt.nem lehet pàr mondatban jellemezni.kivàló szaktudàs, meglepően jó emberbaràt termèszetű.Bnè Tóth Juliànna

Kereső ügyfél

2022.06.23.

Kereső ügyfél

2022.05.24.

Nagyon kedves ês segitö kêsz volt. Mëg vasãrnap este is amikor talältam egy hirdetëst

Kereső ügyfél

2022.05.09.

Hajni nagyon udvarias, szolgálatkész, kedves és felkészült. Sajnos eddig még nem találtuk meg az igazi otthont, de folyamatosan keressük. Köszönjük Hajni.

Kereső ügyfél

2022.05.03.

Kereső ügyfél

2022.04.28.

Kereső ügyfél

2022.04.07.

Kereső ügyfél

2022.04.05.

Kereső ügyfél

2022.03.26.


Írjon nekem!
A siker csak rajtad múlik
A siker csak
rajtad múlik