house36

A közkedvelt Petőfivárosban kétgenerációs családi ház eladó!

K

#3620479 - Kecskemét - Eladó - Ház

Egyedi lehetőség családoknak és befektetőknek: galériás főépület + külön lakható melléképület 3 garázzsal és modern energiatakarékos megoldásokkal Kecskeméten a Petőfivárosban.

Főbb jellemzők:
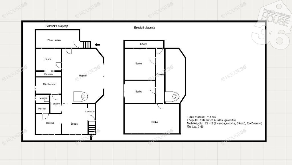
  • 715 m2-es telek, gondozott kerttel
  • Főépület (120 m2): nappali+4 szoba, étkező-konyha, kamra, 2 fürdőszoba, fedett terasz (20 m2) és erkély (5 m2)
  • Melléképület 72 m2: akár kiadásra is tökéletes
  • 3 garázs: autóknak, tárolásra, műhelynek
Kényelem és energiahatékonyság:
  • 7,22 kWp napelemrendszer - alacsony rezsi
  • Gázfűtés, vegyes tüzelésű kazán, kandalló a nappaliban, valamint hűtő - fűtő klíma
  • 30 cm tetőszigetelés hőtükörrel
  • új tetőszerkezet, új külső szigetelés, és színezés, műanyag nyílászárók
  • fúrt kút (42 m) a kert öntözéséhez
Lokáció: csendes, kis forgalmú utca, mégis közel mindenhez.
Per és tehermentes, azonnal költözhető!
Ne hagyja ki ezt a páratlan lehetőséget - legyen Ön az új tulajdonosa ennek a különleges, alacsony rezsijű családi háznak Kecskemét egyik legjobb városrészében!
Figyelem, az adatlap kapott adatok alapján készült, pontosságáért felelősséget nem tudunk vállalni.
A tulajdonos kérésére az ingatlan bemutatása egy személyes konzultáció után történik, ahol részletes tájékoztatást kaphat az ingatlan paramétereiről és egyéb kényelmi szolgáltatásairól.
Amennyiben vásárlásához el kell adnia saját ingatlanát, szívesen segítek, forduljon hozzám bizalommal!

Nincs megjeleníthető értékelés.
Ügyvitel: Eladó
Ingatlan típusa: Ház
Ház altípus: Családi ház
Építési mód: Tégla
Homlokzati szig.: 5 cm
Fűtési mód: Gázfűtés (cirkó), Kandalló, Vegyestüzelésű kazán, Elektromos napelemmel, Klíma
Ingatlan állapota: Jó
Tájolás lakóingatlannál: D-NY
Parkolási lehetőségek: Garázs, Gépkocsi beálló
Közművek: Összközmű, Fúrtkút
Energetikai besorolás: A+
Alapterület: 192 m2
Telek területe: 715 m2
Erkély: igen
Erkélyek területe: 4 m2
Terasz(ok) területe: 20 m2
Szobák száma: 7 db
Fürdőszobák száma: 2 db
Építés éve: 1986
Felújítás éve: 2023
Pince van: Van
Pince területe: 70 m2
Esztétikai felújítások: Burkolatcsere, Konyhabútorcsere, Festés
Műszaki felújítások: Vezetékcsere, Nyílászárócsere, Tetőcsere, Szigetelés, Fűtéskorszerűsítés
Tetőfedés anyaga: Cserép
Födém szig.: 10 cm
Tetőtér beépíthető: Beépített
Nyílászárók fajtája: Fa, Műanyag, Szúnyoghálóval ellátva, Redőnyökkel ellátva
Ingatlanon belüli lakószintek száma: 2 db
Melléképületek száma: 1 db
Melléképületek területe: 72 m2
havi vagy éves gázszámla (fűtésköltség): 4.000,- -5.000,- Ft/hó
Extrák: Klíma, Napkollektor
Betonút melletti: Igen
Közvilágítás: Van
Buszmegálló távolsága kb: 300 m
Bolt távolsága kb: 500 m
Iskola/óvoda távolsága: 700 m
Ingatlan tulajdoni helyzete: Saját
Figyelem az adatlap megbízónktól kapott adatok alapján készült, pontosságáért felelősséget nem tudunk vállalni!
Gugora-Mezei Ágnes
Ingatlanértékesítő
Értékesítői fokozat:
Értékesítői fokozat
Ügyfél értékelés:
4.9 (64 értékelés alapján)

Megbízó

2026.04.03.

Kereső ügyfél

2026.03.24.

Profi értékesítő ,nagyon ajánlom !

Megbízó

2026.03.22.

Kereső ügyfél

2026.02.24.

Kereső ügyfél

2026.02.24.

Kereső ügyfél

2026.02.23.

Rugalmas, gyors munkavégzés hétvégi, késői órában! Tisztelettel teli ügyfélközpontúság, valamint segítőkézség. ????

Kereső ügyfél

2026.02.14.

Kereső ügyfél

2026.02.09.

Megbízó

2026.02.07.

Kereső ügyfél

2026.02.05.

Kereső ügyfél

2026.01.30.

Udvarias, kedves, megbízható, tapasztalt.

Megbízó

2026.01.30.

Kereső ügyfél

2026.01.28.

Megbízó

2026.01.07.

Megbízó

2025.12.20.

Kereső ügyfél

2025.12.07.

Kereső ügyfél

2025.12.07.

Kereső ügyfél

2025.12.07.

Megbízó

2025.12.07.

Kereső ügyfél

2025.12.03.

Kereső ügyfél

2025.12.02.

Kereső ügyfél

2025.11.24.

Kereső ügyfél

2025.11.21.

Maximálusan meg voltam elégedve a segítőkészségében a Hölgynek.

Kereső ügyfél

2025.11.07.

Kereső ügyfél

2025.10.21.

Ági nagyon profi, kedves, közvetlen, felkészült. Élmény vele házat nézni :)

Kereső ügyfél

2025.10.20.

Ági végtelen kedves, rugalmas és felkészült. Öröm vele házat nézni :)

Kereső ügyfél

2025.10.16.

Kereső ügyfél

2025.10.08.

Rendkívül felkészült, kedves, és ami nagyon fontos: segítőkész, korrekt és pontos!

Megbízó

2025.10.07.

Megbízó

2025.10.06.

Kereső ügyfél

2025.09.30.

Ágnes nagyon felkészült, minden lényegi információt tud az ingatlanokról. Kedves, segítőkész, jó megjelenésű. Mindenkinek ilyen ingatlanközvetítőt kívánok! ????

Kereső ügyfél

2025.09.26.

Kereső ügyfél

2025.09.26.

Kereső ügyfél

2025.09.25.

Kereső ügyfél

2025.09.08.

Közvetlen, kedves, felkészült, igényes. Jó kapcsolatot ápol az ingatlantulajdonosokkal. Tetszett, hogy kinyomtatott adatlapokkal érkezett, minden lényegi információt megosztott a megtekinteni kívánt ingatlanokkal kapcsolatban . Jó szakember!

Megbízó

2025.09.07.

Megbízó

2025.08.05.

Kereső ügyfél

2025.08.02.

Megbízó

2025.07.18.

Kereső ügyfél

2025.07.03.

A kapcsolatfelvétel gyors és barátságos volt. Külön kiemelendő a segítőkészség és a találkozóra való alapos felkészülés.

Kereső ügyfél

2025.06.26.

Kereső ügyfél

2025.05.26.

Kereső ügyfél

2025.05.22.

Megbízó

2025.05.17.

Kereső ügyfél

2025.05.13.

Kereső ügyfél

2025.05.06.

Kereső ügyfél

2025.04.16.

Kereső ügyfél

2025.04.10.

Kereső ügyfél

2025.04.07.

Kedves és szakértő hozzáállás.

Megbízó

2025.04.02.

Kereső ügyfél

2025.03.27.

Kereső ügyfél

2025.03.17.

Kereső ügyfél

2025.02.04.

Kereső ügyfél

2025.02.04.

Nagyon kedves , segítőkész .

Kereső ügyfél

2025.02.04.

Kereső ügyfél

2024.12.02.

Kereső ügyfél

2024.11.22.

Kereső ügyfél

2024.10.09.

Ági nagyon professzionális, miközben egyszerre hihetetlenül kedves és laza. Megfelelő módon mutatta be a megtekintett ingatlant és informatív volt, csak ajánlani tudom bárkinek!

Kereső ügyfél

2024.10.08.

Kereső ügyfél

2024.09.16.

Kereső ügyfél

2024.09.16.

Kereső ügyfél

2024.09.16.

Kereső ügyfél

2024.09.03.

Kereső ügyfél

2024.08.28.

nagyon készséges, segítőkész. Munkájával elégedett vagyok.


Írjon nekem!
A siker csak rajtad múlik
A siker csak
rajtad múlik