house36

Dunaegyházán központi elhelyezkedésű, sokoldalúan hasznosítható ingatlan eladó!

K

#3620068 - Dunaegyháza - Eladó - Üzlethelyiség

Új
Kizárólagos
megbízás
Ár: 15.3 M Ft
 
Kivételes lehetőség vendéglátás vagy más vállalkozás számára!

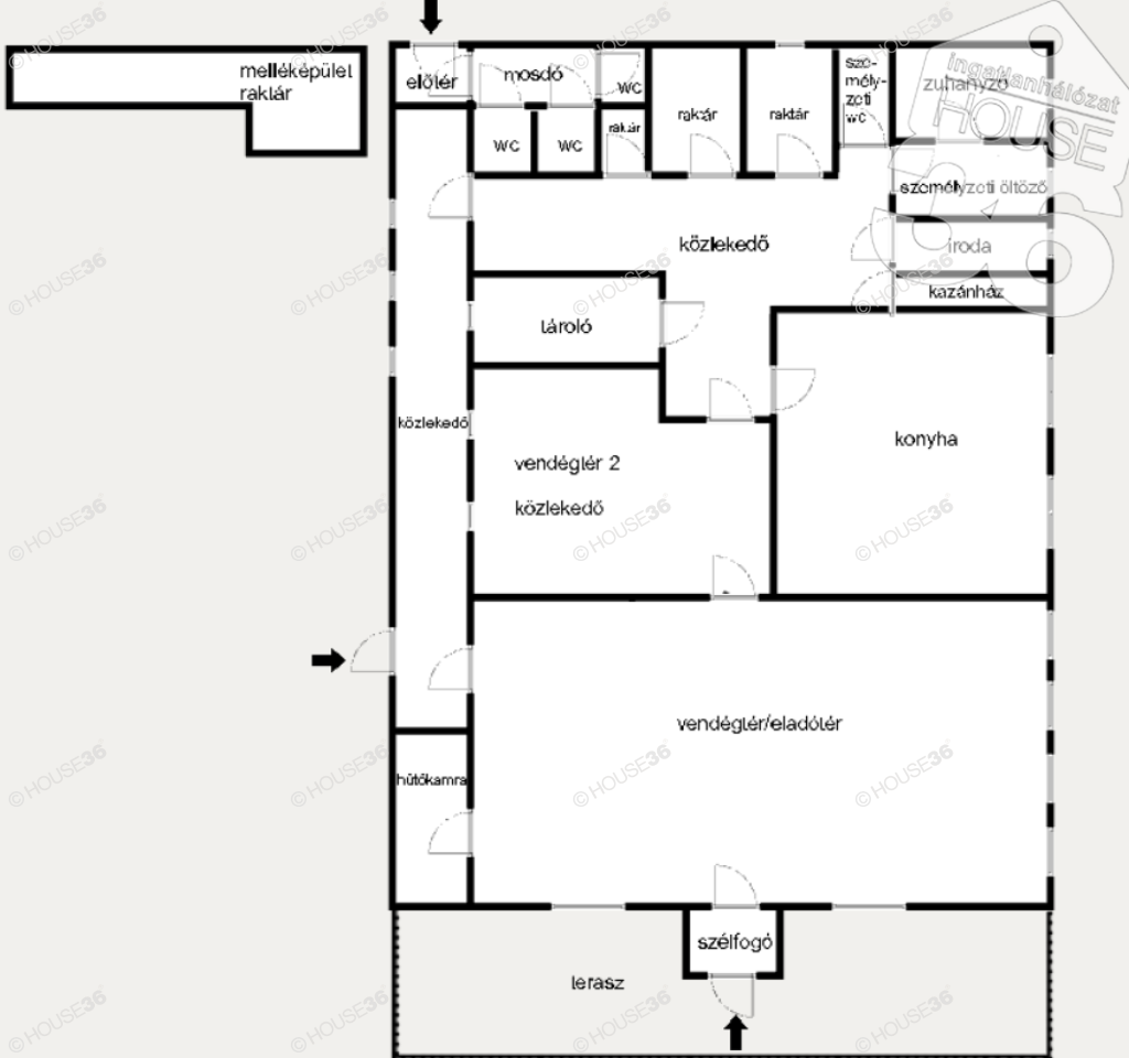
Megvételre kínálunk egy kb. 210 m2-es alapterülettel rendelkező, korábban vendéglátóegységként hasznosított, könnyűszerkezetes ingatlant. Kiváló adottságainak köszönhetően új tulajdonosa számos üzleti lehetőséget valósíthat meg benne. Az ingatlan a település központjában helyezkedik el. Belső kialakítása praktikus és funkcionális. 

Az egységhez továbbá tartozik egy 70 m2-es terasz, amely kiválóan alkalmas szabadtéri vendégfogadásra vagy szezonális bővítésre, valamint egy 60 m2-es melléképület, amely korábban raktárként szolgált.

Ideális választás étteremnek, cukrászdának, kávézónak, pizzériának, rendezvényhelyszínnek vagy akár más típusú szolgáltató tevékenységnek is.

Jellemzők:
- kb. 210 m2-es alapterület
- cserélt villanyvezetékek
- női és férfi mosdókban új burkolatok
- gázfűtés
- ipari áram
- fa nyílászárók
- vezetékes víz, villany, gáz, internet
- 100 m2-es vendégtér/eladótér
- 70 m2-es terasz
- 60 m2-es  külső raktár
- raktárak, tárolók
- konyha
- iroda
- tisztítószer raktár
- személyzet részére öltöző, zuhanyzó, wc

Figyelem az adatlap megbízónktól kapott adatok alapján készült, pontosságáért felelősséget nem tudunk vállalni!
 
Hívjon bizalommal, szolgáltatásaink Kereső ügyfeleink számára INGYENESEK!
Amennyiben eladó-kiadó ingatlana van, vagy finanszírozási megoldást keres, hívjon, megtaláljuk a legjobb lehetőséget önnek!
Nincs megjeleníthető értékelés.
Ügyvitel: Eladó
Ingatlan típusa: Üzlethelyiség
Üzlethelyiség altípus: Egyéb üzlethelyiség
Építési mód: Könnyűszerkezetes
Fűtési mód: Gázfűtés (cirkó)
Ingatlan állapota: Folyamatosan karbantartott
Parkolási lehetőségek: Gépkocsi beálló, Utcán
Közművek: Gáz, Villany, Városi víz
Energetikai besorolás: G
Alapterület: 210.8 m2
Telek területe: 575 m2
Erkély: nem
Terasz(ok) területe: 70 m2
Fürdőszobák száma: 1 db
Építés éve: 1979
Felújítás éve: 2010
Pince van: ---
Esztétikai felújítások: Burkolatcsere, Fürdőszoba felújítás
Műszaki felújítások: Vezetékcsere
Tetőfedés anyaga: Pala
Tetőtér beépíthető: Nem
Nyílászárók fajtája: Fa
Melléképületek száma: 1 db
Melléképületek területe: 60 m2
Emelet: ---
Extrák: Riasztó
Betonút melletti: Igen
Buszmegálló távolsága kb: 150 m
Bolt távolsága kb: 5 m
Iskola/óvoda távolsága: 1000 m
Közvilágítás: Van
Ingatlan tulajdoni helyzete: Saját
Figyelem az adatlap megbízónktól kapott adatok alapján készült, pontosságáért felelősséget nem tudunk vállalni!
Kecskés Imola
Ingatlanértékesítő
Ügyfél értékelés:
5 (19 értékelés alapján)

Megbízó

2026.03.13.

Megbízó

2026.03.02.

Megbízó

2026.02.17.

Megbízó

2026.01.16.

Megbízó

2026.01.06.

Megbízó

2025.12.03.

Megbízó

2025.12.01.

Kereső ügyfél

2025.11.30.

Nagyon kedves, segítőkész az Imola. Mindenben segitségünkre volt. Tiszta szívből ajánlom. Hatalmas köszönet a munkájáért. ????????

Megbízó

2025.10.15.

Maximálisan elégedett vagyok!

Megbízó

2025.10.05.

Kereső ügyfél

2025.09.19.

Kereső ügyfél

2025.09.18.

Negatív dolgot nem tapasztaltam, kedves segítőkész volt a hölgy!

Megbízó

2025.08.29.

Megbízó

2025.08.14.

Maximalisan elégedett vagyok Imola munkályával.

Megbízó

2025.08.05.

A Lehető legkedvesebb ingatlanközvetítő, és bármi kérdésünkre mindig megfelelő választ ad, ha valamit épp Nem értünk elmagyarázza. Szívből ajánlom mindenkinek!

Megbízó

2025.07.29.

Kereső ügyfél

2025.06.28.

Nagyon kedvesen, türelmesen és sok időt ránk szánva vezetett végig az ingatlanvásárlás folyamatán. Ajánlom!

Kereső ügyfél

2025.05.01.

Megbízó

2025.04.13.

Nagyon elégedett vagyok . Kedves ,aranyos és csak a legjobbat akarja ,nagyon segìtőkész. Maximálissan elégedettek vagyunk.


Írjon nekem!
A siker csak rajtad múlik
A siker csak
rajtad múlik