house36

Új építésű családi ház Bugacon!

K

#3621375 - Bugac - Eladó - Ház

Ár: 59.9 M Ft
 
*Új építésű családi ház Bugacon*
Bugac nagyközség belterületén, frekventált helyen eladó új építésű családi ház.
A telek jól megközelíthető, betonos utcában, közelben buszmegálló, iskola, bolt. 

A feltüntetett ár tartalmazza a telek árát, kulcsrakész tégla építésű házat és a teljes közmű kiépítését.

Műszaki  tartalom: 
-Teherhordó falazat: Wienerberger Porotherm 30X-Therm tégla
-Válaszfal: Wienerberger Porotherm 10 tégla
-Homlokzati hőszigetelés: 15 cm EPS
-Tetőhéjazat választható: Bramac, Leier vagy Terrán tetőcserép 11 színben
-Külső nyílászárók: 3 üvegrétegű prémium nyílászáró
-Hideg burkolat: 7500 ft/m2-ig
-Meleg burkolat választható: 6000 ft/m2-ig
-Szaniterek választható:(kád,zuhany,csaptelep) 580.000 ft/100 m2-ig
-Bejárati ajtó választható: 250.000 ft- ig
-Teraszajtó választható: 250.000 ft-ig 
-Beltéri ajtó választható 90.000 ft -ig
-Gépészet választható: Bosch levegő-víz hőszivattyú padlófűtéssel+inverteres klíma

A feltüntetett ár tájékoztató jellegű, a jelen tervre készült kalkuláció. Egyedi tervezés és egyedi igények alapján a költségek változhatnak. 

Figyelem az adatlap megbízónktól kapott adatok alapján készül, pontosságáért felelősséget nem tudunk vállalni!

 A tulajdonos kérésére az ingatlan bemutatása egy személyes konzultáció bemutatása után történik, ahol részletes tájékoztatást kaphat az ingatlan paramétereiről és egyéb kényelmi szolgáltatásairól.A HOUSE36 kínálatában található össze ingatlannal kapcsolatban tudok felvilágosítást nyújtani!
Nincs megjeleníthető értékelés.
Ügyvitel: Eladó
Ingatlan típusa: Ház
Ház altípus: Családi ház
Építési mód: Tégla
Homlokzati szig.: 15 cm
Fűtési mód: Padlófűtés, Hőszivattyús
Ingatlan állapota: Új
Energetikai besorolás: A
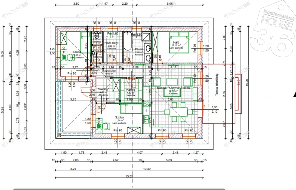
Alapterület: 107 m2
Telek területe: 900 m2
Erkély: nem
Szobák száma: 4 db
Fürdőszobák száma: 2 db
Építés éve: 2026
Pince van: ---
Műszaki felújítások: Nyílászárócsere, Szigetelés
Tetőfedés anyaga: Cserép
Tetőtér beépíthető: ---
Nyílászárók fajtája: Műanyag
Közvilágítás: Van
Ingatlan tulajdoni helyzete: Saját
Figyelem az adatlap megbízónktól kapott adatok alapján készült, pontosságáért felelősséget nem tudunk vállalni!
Király Szabina
Ingatlanértékesítő
Értékesítői fokozat:
Értékesítői fokozat
Ügyfél értékelés:
5 (28 értékelés alapján)

Kereső ügyfél

2026.03.24.

Szeretném megköszönni Király Szabina kiemelkedő munkáját! Bár lakásvásárlásra végül nem került sor, Szabina hozzáállása végig példaértékű volt. Minden megkeresésemre rendkívül rövid időn belül reagált; szakmailag felkészült, megbízható, rugalmas és pontos szakembert ismertem meg benne. Potenciális vevőként is maximális figyelmet kaptam, ezért őszinte szívvel ajánlom mindenkinek! M. N. Katalin

Kereső ügyfél

2026.03.24.

Nagyon korrekt mutatás és tájékoztatás, proaktív és barátságos hozzáállás. Példamutató eljárás. Köszönöm. Üdvözlettel, Palotai Balázs

Kereső ügyfél

2026.03.19.

Szakmailag felkészült ingatlanértékesítő. Nagyon elégedett voltam Szabina munkájával. Segítőkész, megbízható és végig profi hozzáállást tanúsított. Gyorsan reagált minden kérdésre, és az ingatlanbemutatás alatt végig kedves hozzáállást tanúsított.

Kereső ügyfél

2025.09.05.

Kereső ügyfél

2025.09.02.

Részletes tájékoztatás, pontosság és rugalmasság, segítőkészség

Kereső ügyfél

2025.08.19.

Kereső ügyfél

2025.08.13.

Megbízó

2025.08.03.

Kereső ügyfél

2025.04.11.

Nagyon kedves, szakmájához értő hölggyel találkozunk.

Kereső ügyfél

2025.03.18.

Kereső ügyfél

2025.02.07.

A legkedvesebb értékesítő, akivel eddig találkoztam, precíz, lelkiismeretes!

Kereső ügyfél

2025.02.07.

A legkedvesebb értékesítő, akivel eddig találkoztam, precíz, lelkiismeretes!

Kereső ügyfél

2025.02.04.

Kereső ügyfél

2024.11.11.

Mindennel meg voltunk elégedve . További sok sikert.

Kereső ügyfél

2024.09.13.

Kereső ügyfél

2024.07.01.

Egy beeső ingatlant próbált még utolsó utáni pillanatban le szervezni, és akit lehetett a cégnél végig hívott, és minden követ megmozgatott, de az eladók nyaralni mentek. Maximális a hozzáállása és a talpra esettsége.

Kereső ügyfél

2024.06.21.

Minden a megbeszélték alapján ment, felkészült és informált volt

Kereső ügyfél

2024.06.07.

A korábban megszokott maximalizmussal és felkészülten érkezett a lakás megtekintésre, minden információt begyűjtött az ingatlanokról. A továbbiakban is vele szeretnénk együtt dolgozni.

Kereső ügyfél

2024.06.03.

Kereső ügyfél

2024.05.31.

Nagyon rugalmas és segítőkész volt a kolléganő, még a nehezítő körülményekkel is megbirkózott (velük lévő gyerek elfáradt és nyűgös volt) a jövőben mindenképpen szeretnénk a kolléganővel a közös munkát folytatni.

Megbízó

2024.05.27.

Kereső ügyfél

2024.05.23.

Megbízó

2024.05.01.

Megbízó

2024.03.21.

Megbízó

2024.03.02.

Kereső ügyfél

2024.02.28.

Kereső ügyfél

2024.02.28.

Megbízó

2024.01.16.


Írjon nekem!
A siker csak rajtad múlik
A siker csak
rajtad múlik