house36

Eladó Új Építésű Családi ház Helvécián!

K

#3621141 - Kecskemét - Eladó - Ház

Új
Kizárólagos
megbízás
Ár: 89.9 M Ft
 
Építkezzen Kecskemét vonzáskörzetében a közkedvelt Helvécián!
ELADÓ egy új építésű családi ház aszfaltozott út mellett lévő 620 m2-es önálló sarki telken.
Jellemzői:
- Várható átadás: 2026. október
- Telek mérete: 620 m2
- Összközműves
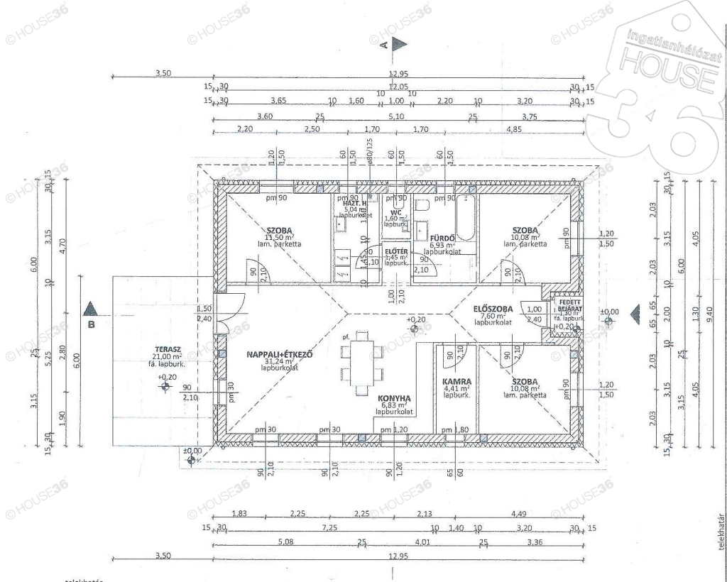
- Lakótér: 96,76 m2
- Terasz: 21 m2
- Helyiségek: Nappali-étkező-konyha + 3 szoba, kamra, fürdőszoba, külön mosdó, háztartási helyiség
- Tégla építésű (+ tégla válaszfalak)
- Külső nyílászárók: fehér műanyag ablakok redőnnyel 
- Bejárat ajtó: fehér műanyag hőszigetelt
- Beltéri ajtók (választható): 80.000,-/db
- Fűtés: padlófűtés
- Burkolatok: hideg -és meleg (választható): 9.000,-/m2
- Egyéb extrák: - 2,5 kW napelem
                         - 3,5 kW-os hűtő-fűtő klíma
- Kerítés
- Választható: fedett gépkocsi beálló v. garázs (az ár nem tartalmazza!)
 

Figyelem az adatlap megbízónktól kapott adatok alapján készült, pontosságáért felelősséget nem tudunk vállalni!
Szolgáltatásaink Kereső ügyfeleink számára INGYENESEK! Amennyiben eladó-kiadó ingatlana van vagy finanszírozási megoldást keres, hívjon, megtaláljuk a legjobb lehetőséget Önnek! A HOUSE36 kínálatában található összes ingatlannal kapcsolatban tudok felvilágosítást nyújtani! 
Hívjon bizalommal!
 

Nincs megjeleníthető értékelés.
Ügyvitel: Eladó
Ingatlan típusa: Ház
Ház altípus: Családi ház
Építési mód: Tégla
Homlokzati szig.: 15 cm
Fűtési mód: Gázfűtés (cirkó), Padlófűtés, Klíma
Ingatlan állapota: Új
Parkolási lehetőségek: Fedett gépkocsi beálló
Közművek: Összközmű
Energetikai besorolás: A+
Alapterület: 96.76 m2
Telek területe: 620 m2
Erkély: nem
Terasz(ok) területe: 21 m2
Szobák száma: 4 db
Fürdőszobák száma: 1 db
Építés éve: 2026
Pince van: Nincs
Tetőfedés anyaga: Cserép
Födém szig.: 25 cm
Tetőtér beépíthető: Nem
Nyílászárók fajtája: Műanyag, Redőnyökkel ellátva
Extrák: Klíma, Napelem
Betonút melletti: Igen
Közvilágítás: Van
Ingatlan tulajdoni helyzete: Saját
Figyelem az adatlap megbízónktól kapott adatok alapján készült, pontosságáért felelősséget nem tudunk vállalni!
Fricskáné Katalin
Vezető értékesítő
Értékesítői fokozat:
Értékesítői fokozat
Kép
Ügyfél értékelés:
4.9 (62 értékelés alapján)

Megbízó

2026.03.30.

Megbízó

2026.02.12.

Kereső ügyfél

2026.02.02.

Kereső ügyfél

2026.01.22.

Kereső ügyfél

2026.01.22.

Kereső ügyfél

2026.01.14.

Kereső ügyfél

2026.01.12.

Megbízó

2025.12.12.

Kereső ügyfél

2025.11.27.

Megbízó

2025.10.11.

Kereső ügyfél

2025.10.10.

Kereső ügyfél

2025.10.06.

Megbízó

2025.09.10.

Kereső ügyfél

2025.09.03.

Megbízó

2025.08.10.

Kereső ügyfél

2025.07.24.

Kereső ügyfél

2025.07.11.

Nagyon kedves és segítőkész. Csak ajánlani tudom

Kereső ügyfél

2025.06.12.

Segítő kész, felkészült

Megbízó

2025.06.11.

Kereső ügyfél

2025.06.02.

Kedves, figyelmes. Számunkra fontos információkat megosztott.

Megbízó

2025.02.17.

Kereső ügyfél

2025.02.10.

Kereső ügyfél

2025.02.04.

Kereső ügyfél

2025.02.04.

Megbízó

2025.02.01.

Kereső ügyfél

2025.01.21.

Profi, kedves, minden számomra fontos kérdésre tudott válaszolni!

Megbízó

2025.01.16.

Nagyon hálásak vagyunk a precíz, szakmailag első osztályú segítségért! Már sokadik alkalommal bizonyította Kata, hogy az egyik legjobb értékesítő! Köszönöm szépen a segítséget!

Kereső ügyfél

2024.12.30.

Kereső ügyfél

2024.11.14.

Kereső ügyfél

2024.10.05.

Kereső ügyfél

2024.08.26.

Kedves, felkészült, készséges,…..

Megbízó

2024.08.25.

Kereső ügyfél

2024.08.19.

Kereső ügyfél

2024.07.20.

nagyon jól felkészült szakember, abszolút megértette mit is keresünk.

Kereső ügyfél

2024.07.05.

szakmailag igen felkészült, segítőkész

Kereső ügyfél

2024.07.04.

Naprakész, segitőkész. Öröm vele együtt dolgozni

Megbízó

2024.06.08.

Kereső ügyfél

2024.05.29.

Kereső ügyfél

2024.05.08.

Megbízó

2024.04.13.

Kereső ügyfél

2024.01.12.

Kereső ügyfél

2023.12.24.

Kereső ügyfél

2023.11.17.

Kereső ügyfél

2023.11.17.

maximálisan elégedett vagyok!

Kereső ügyfél

2023.10.24.

Kereső ügyfél

2023.10.02.

Kereső ügyfél

2023.09.08.

Elmondott előzetesen mindent amit tudni szerettünk volna. A megtekintést követő napon is érdeklődött, hogy mi a véleményünk, ami egyedi és pozitív. Naprakész és ha új információt kap annak utána jár.

Kereső ügyfél

2023.08.31.

Mindenben segítőkész. Felkészült.

Kereső ügyfél

2023.08.18.

Katalin teljeskörű képet adott az ingatlanról, részletesen és alaposan bemutatta azt. Nem csak az alapvető információkra koncentrált, ez segített teljes körűen megérteni az ingatlan potenciálját és előnyeit.

Megbízó

2023.08.02.

Nagyon segítőkész, közlékeny, talpraesett! Ha vevőt hoz semmi dolgom nincs csak beengedni, ő intéz mindent beszél mutatja a házat! Nagyon meg vagyok elégedve vele!

Kereső ügyfél

2023.06.13.

Minden tájékoztatást megkaptunk, segítőkész, nagyon elégedettek voltunk! Köszönjük szépen a segítségét!!!

Megbízó

2023.05.17.

Rugalmas és segítőkész!

Kereső ügyfél

2023.02.22.

Nagyon kedves es segitokesz holgy.Koszonjuk ha segit

Megbízó

2023.02.15.

Kereső ügyfél

2023.02.15.

Kereső ügyfél

2023.02.08.

Kedves maximálisan segítőkész.

Kereső ügyfél

2023.01.23.

Megbízó

2023.01.19.

Kedves segítőkész tökéletes értékesítő.

Kereső ügyfél

2022.11.08.

Kereső ügyfél

2022.10.27.


Írjon nekem!
A siker csak rajtad múlik
A siker csak
rajtad múlik