house36

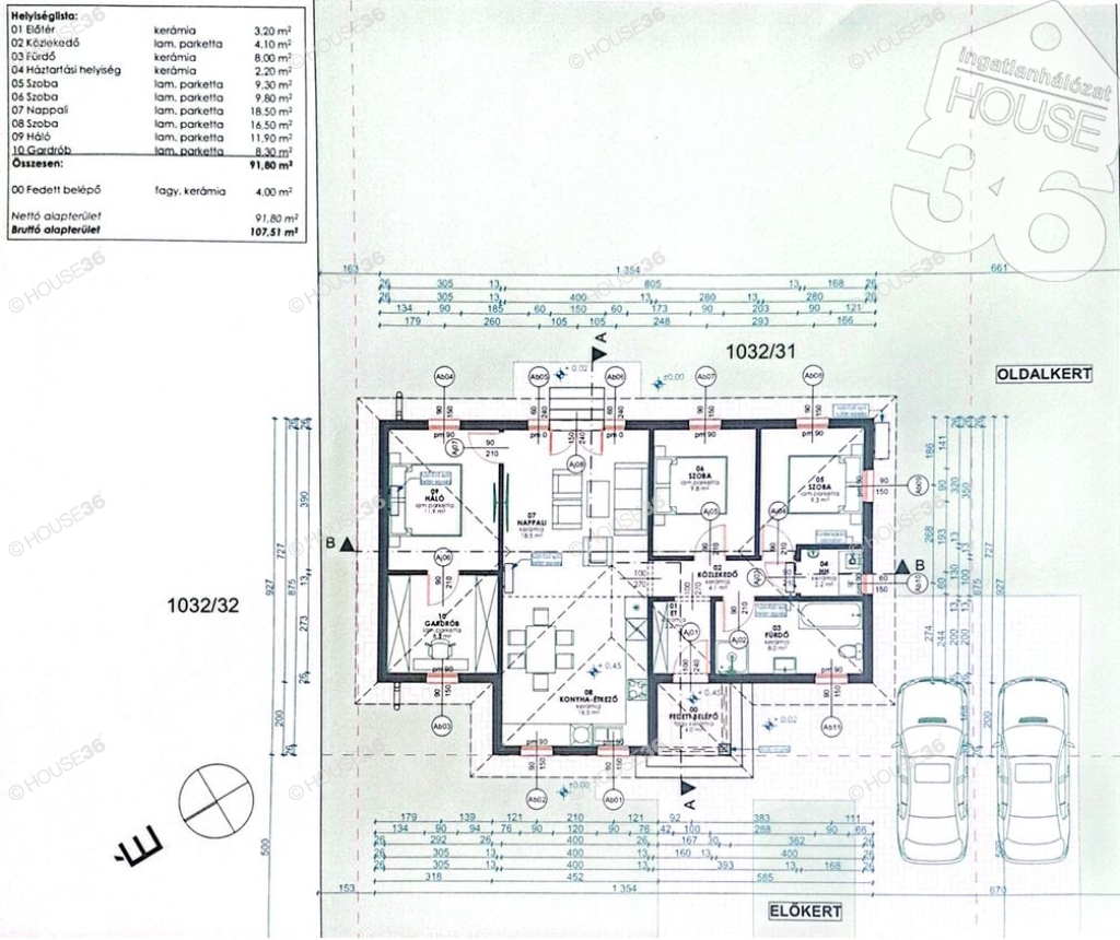
91,8 m²-es modern családi ház projekt eladó!

K

#3621064 - Kiskunfélegyháza - Eladó - Ház

Ár: 46.99 M Ft
 
Kiskunfélegyházán új építésű, korszerű műszaki tartalommal, egyedi igények szerint megvalósítható 3 szoba + nappalis könnyűszerkezetes családi ház projekt eladó!
Az ár a telek árát nem tartalmazza!

Jellemzők:
  • 91,8 m² jól átgondolt nettó lakótér
  • energiatakarékos hőszivattyús padlófűtés
  • szigetelés: 10 cm homlokzati, 30 cm födém, 12 cm aljzat
  • műanyag nyílászárók 3 rétegű, 5 légkamrás
  • burkolatok értékhatára 6000 Ft/m² 
  • bramac vagy leier cserép
Az ár tartalmazza a fedett belépőt!
IDŐ
és ÁRGARANCIA! 20 éves tapasztalat és 300+ felépített ház.
Méretben és szerkezetben eltérő építésben is tudunk segíteni!
Ingyenes hitelügyintézés! 
Figyelem az adatlap megbízónktól kapott adatok alapján készült, pontosságáért felelősséget nem tudunk vállalni!
 
  Hívjon bizalommal!
Szolgáltatásaink Kereső ügyfeleink számára INGYENESEK!

Nincs megjeleníthető értékelés.
Ügyvitel: Eladó
Ingatlan típusa: Ház
Ház altípus: Családi ház
Építési mód: Könnyűszerkezetes
Homlokzati szig.: 10 cm
Fűtési mód: Padlófűtés, Hőszivattyús
Ingatlan állapota: Új
Alapterület: 91.8 m2
Telek területe: 0 m2
Erkély: nem
Szobák száma: 4 db
Fürdőszobák száma: 1 db
Pince van: Nincs
Tetőfedés anyaga: Cserép
Födém szig.: 30 cm
Tetőtér beépíthető: ---
Nyílászárók fajtája: Műanyag
Közvilágítás: Van
Ingatlan tulajdoni helyzete: Saját
Figyelem az adatlap megbízónktól kapott adatok alapján készült, pontosságáért felelősséget nem tudunk vállalni!
Seres Alexandra
Ingatlanértékesítő
Ügyfél értékelés:
5 (13 értékelés alapján)

Megbízó

2025.08.26.

Megbízó

2025.08.05.

Megbízó

2025.07.24.

Kereső ügyfél

2025.04.29.

Megbízó

2025.04.26.

Teljes körűen megvagyok elégedve.

Megbízó

2025.04.09.

Kereső ügyfél

2025.03.27.

Kereső ügyfél

2025.02.03.

Megbízó

2025.01.13.

Kereső ügyfél

2024.10.28.

Szuper, gyors ügyintézés Köszönöm

Megbízó

2024.10.05.

Kereső ügyfél

2024.09.22.

Nagyon kedves, udvarias, közvetlen és megbízható.

Megbízó

2024.08.03.


Írjon nekem!
A siker csak rajtad múlik
A siker csak
rajtad múlik