house36

Kecskemét Helvécián újépítésű házak még elérhetőek!

K

#3621031 - Kecskemét - Eladó - Ház

 
Kecskemét Helvécián családi házak eladók!

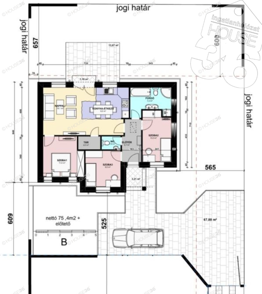
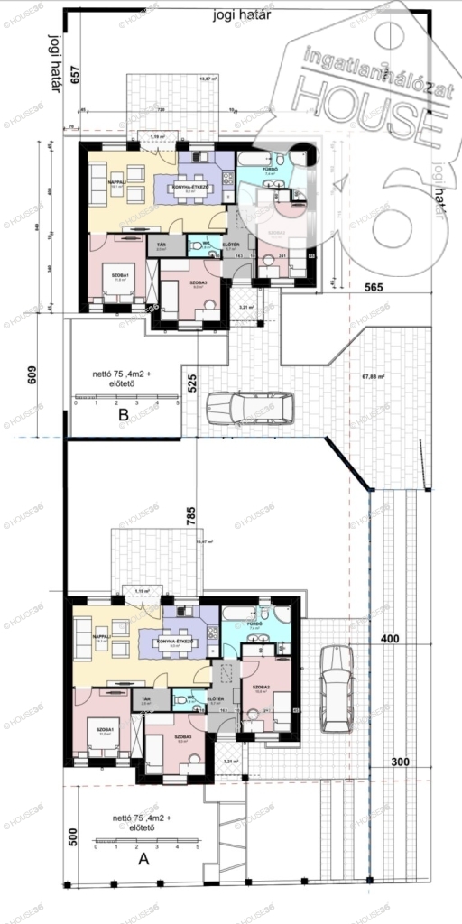
Kiváló elhelyezkedésű környéken kínáljuk ezt a 75 m2-es , nappali + 3  szobás magas minőségű családi házat 400 m2-es telken. 

Paraméterek: 
- nappali + 3 szoba
- nettó 75 m2
- 15 m2-es fedett gépkocsibeálló
- Wienerberger Porotherm tégla ( + 40% hőtartás)
- egyedi gáz-cirkó fűtés padlófűtéssel kombinálva
- klíma
- prémium minőségű műanyag nyílászárók
- szaniterek 1 millió forintig az árban
- hideg - meleg burkolatok 9,000.-/ m2
- ár garancia
- idő garancia
- várható átadás szerződéskötéstől számított 8-10 hónap
- módosítható tervek
 
Az ár az építési telek árát is tartalmazza!
Otthon Start kompatibilis!!!
 

CSAK NÁLUNK KERESSE!
 
 
RÉGI MEGY, ÚJ JÖN? KERESSEN BIZALOMMAL!! SEGÍTEK MEGOLDANI!!

Figyelem, az adatlap megbízóinktól kapott adatok alapján készültek, pontosságáért felelősséget nem tudunk vállalni!
A HOUSE36 kínálatában található összes ingatlannal kapcsolatban tudok felvilágosítást nyújtani.
Szolgáltatásaink ügyfeleink részére díjmentesek!

 

Nincs megjeleníthető értékelés.
Ügyvitel: Eladó
Ingatlan típusa: Ház
Ház altípus: Családi ház
Építési mód: Tégla
Homlokzati szig.: 15 cm
Fűtési mód: Gázfűtés (cirkó), Padlófűtés, Klíma
Ingatlan állapota: Új
Parkolási lehetőségek: Gépkocsi beálló
Közművek: Összközmű
Energetikai besorolás: A+
Alapterület: 75 m2
Telek területe: 400 m2
Erkély: nem
Szobák száma: 4 db
Fürdőszobák száma: 1 db
Építés éve: 2026
Pince van: ---
Tetőfedés anyaga: Cserép
Födém szig.: 30 cm
Tetőtér beépíthető: Nem
Nyílászárók fajtája: Műanyag
Ingatlanon belüli lakószintek száma: 1 db
Extrák: Klíma
Betonút melletti: Igen
Közvilágítás: Van
Ingatlan tulajdoni helyzete: Saját
Figyelem az adatlap megbízónktól kapott adatok alapján készült, pontosságáért felelősséget nem tudunk vállalni!
Várnagy Krisztina
Vezető értékesítő
Értékesítői fokozat:
Értékesítői fokozat
Kép

Írjon nekem!
A siker csak rajtad múlik
A siker csak
rajtad múlik