house36

*Eladó családi ház Kerekegyházán - Kecskeméttől 15 percre*

K

#3620984 - Kerekegyháza - Eladó - Ház

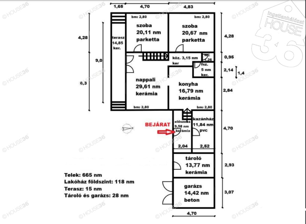
Kerekegyházán frekventált elhelyezkedéssel, eladó egy tégla építésű családi ház, 665 m2-es önálló telken, 179 m2-es lakótérrel!
Az ingatlan főbb jellemzői:
-Nappali + 4 szoba
-10 m2-es erkély
-Gázkazán és vegyes tüzelésű kazán
-Radiátoros fűtés
-Klíma
-Műanyag nyílászárók, redőny, szúnyogháló
-Garázs
Jó elosztású, tágas otthon, ideális nagyobb család számára is!

Figyelem az adatlap megbízónktól kapott adatok alapján készült,pontosságáért felelősséget nem tudunk vállalni! A négyzetméter adatok tájékoztató jellegűek. Az ingatlan kizárólag értékesítő által megtekinthető! A HOUSE36 kínálatában található összes ingatlannal kapcsolatban tudok felvilágosítást nyújtani.                                                         
Hívjon bizalommal
Szolgáltatásaink Kereső ügyfeleink számára INGYENESEK! Ha az ingatlan elnyerte tetszését, de előbb el kell adni a saját otthonát, keressen bizalommal, segítek megtalálni az újat is!
"Otthonteremtés Szívvel-Lélekkel"
Nincs megjeleníthető értékelés.
Ügyvitel: Eladó
Ingatlan típusa: Ház
Ház altípus: Családi ház
Építési mód: Tégla
Fűtési mód: Gázfűtés (cirkó), Vegyestüzelésű kazán
Ingatlan állapota: Jó
Parkolási lehetőségek: Garázs, Dupla garázs, Fedett gépkocsi beálló
Közművek: Összközmű
Energetikai besorolás: D
Alapterület: 179 m2
Telek területe: 665 m2
Erkély: nem
Erkélyek területe: 10 m2
Terasz(ok) területe: 30 m2
Szobák száma: 5 db
Fürdőszobák száma: 2 db
Építés éve: 1986
Felújítás éve: 2020
Pince van: Nincs
Esztétikai felújítások: Burkolatcsere, Konyhabútorcsere, Fürdőszoba felújítás, Festés
Műszaki felújítások: Nyílászárócsere
Tetőfedés anyaga: Cserép
Födém szig.: 15 cm
Tetőtér beépíthető: Beépített
Nyílászárók fajtája: Műanyag, Szúnyoghálóval ellátva, Redőnyökkel ellátva
Melléképületek száma: 2 db
Extrák: Klíma, Riasztó
Betonút melletti: Igen
Közvilágítás: Van
Buszmegálló távolsága kb: 100 m
Bolt távolsága kb: 100 m
Iskola/óvoda távolsága: 1000 m
Ingatlan tulajdoni helyzete: Saját
Figyelem az adatlap megbízónktól kapott adatok alapján készült, pontosságáért felelősséget nem tudunk vállalni!
Rafael László
Ingatlanértékesítő
Értékesítői fokozat:
Értékesítői fokozat
Ügyfél értékelés:
4.9 (17 értékelés alapján)

Kereső ügyfél

2026.03.02.

Kereső ügyfél

2025.12.08.

Kereső ügyfél

2025.11.28.

Kereső ügyfél

2025.11.07.

Mindennel meg voltam elégedve!

Kereső ügyfél

2025.10.20.

Kereső ügyfél

2025.04.23.

Kereső ügyfél

2025.04.10.

Kereső ügyfél

2025.03.24.

Kereső ügyfél

2025.03.17.

Kereső ügyfél

2025.03.03.

Megbízó

2025.01.27.

Kereső ügyfél

2025.01.03.

Kereső ügyfél

2024.11.29.

Kereső ügyfél

2024.08.31.

László nagyon közetlen, segítőkész értékesítő, sikeresen megtalálta az igényeinknek megfelelő lakást. Köszönjük szépen!

Megbízó

2024.07.22.

László hiteles, őszinte. A kapcsolatot folyamatosan tartja velem, minden lehetőséget felajánl, megoszt velem. Rugalmas és megbízható. Köszönöm a munkáját!

Kereső ügyfél

2024.05.21.

Jó szeme van! Kedves!!

Kereső ügyfél

2024.02.22.


Írjon nekem!
A siker csak rajtad múlik
A siker csak
rajtad múlik