house36

Kecskeméten szigetelt tömbben 3 szobás erkélyes lakás eladó!

K

#3620926 - Kecskemét - Eladó - Lakás

Ár: 44.9 M Ft
 
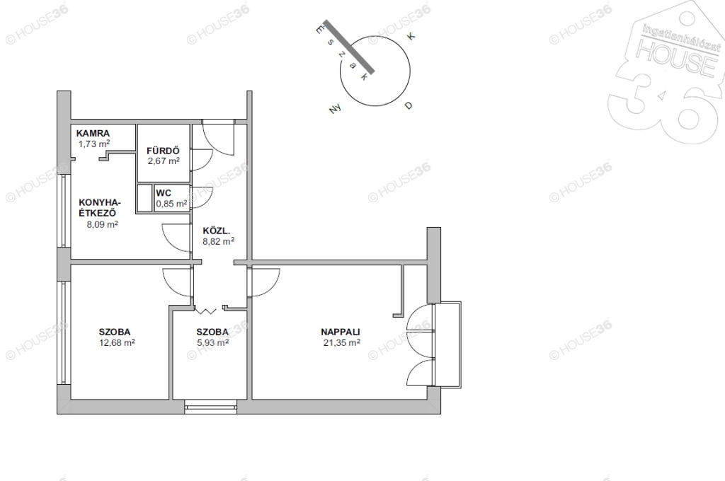
Kecskemét Széchenyivárosban, 61 m2-es, 3 szobás, erkélyes lakás, liftes házban eladó!

Jellemzők:
  • szigetelt tömb
  • 3 külön nyíló szoba
  • lift
  • cserélt műanyag nyílászárók
  • távfűtés egyedi mérőkkel
  • kitűnő infrastruktúra
  • azonnal birtokba vehető
Figyelem az adatlap megbízóinktól kapott adatok
alapján készült,pontosságáért felelősséget
nem tudunk vállalni!
A HOUSE36 kínálatában található összes ingatlannal
kapcsolatban tudok felvilágosítást nyújtani!
      Hívjon bizalommal!
 Szolgáltatásaink Kereső ügyfeleink számára
                   INGYENESEK!             
Ha az ingatlan vásárláshoz meglévő ingatlan eladása szüksége keressen nyugodtan állok rendelkezésére!!

Nincs megjeleníthető értékelés.
Ügyvitel: Eladó
Ingatlan típusa: Lakás
Lakás altípus: Panel
Építési mód: Panel
Homlokzati szig.: 10 cm
Fűtési mód: Távfűtés egyedi mérővel
Ingatlan állapota: Átlagos
Parkolási lehetőségek: Utcán
Közművek: Összközmű
Energetikai besorolás: A
Társasházban lévő em. száma: 10
Emelet: 5
Alapterület: 61 m2
Erkély: igen
Erkélyek területe: 2 m2
Szobák száma: 3 db
Fürdőszobák száma: 1 db
Építés éve: 1978
Pince van: ---
Műszaki felújítások: Nyílászárócsere, Szigetelés, Fűtéskorszerűsítés
Tetőfedés anyaga: Járható lapostető
Tetőtér beépíthető: ---
Nyílászárók fajtája: Műanyag, Szúnyoghálóval ellátva
Lift: Van
Épületben lakások száma: 30 db
Közös helyiség: Van
Extrák: Elektromos kapu
Betonút melletti: Igen
Buszmegálló távolsága kb: 100 m
Bolt távolsága kb: 100 m
Iskola/óvoda távolsága: 500 m
Közvilágítás: Van
Ingatlan tulajdoni helyzete: Saját
Figyelem az adatlap megbízónktól kapott adatok alapján készült, pontosságáért felelősséget nem tudunk vállalni!
Dakó Ferenc
Vezető értékesítő
Értékesítői fokozat:
Értékesítői fokozat
Kép Kép Kép
Ügyfél értékelés:
4.9 (126 értékelés alapján)

Kereső ügyfél

2026.01.26.

Megbízó

2026.01.20.

Kereső ügyfél

2025.09.30.

Pontosan érkezett (már ott volt), felkészült volt az ingatlannal kapcsolatban és minden kérdésemre választ kaptam.

Megbízó

2025.06.12.

Kereső ügyfél

2025.06.03.

Korrekt, udvarias, segítőkész.

Kereső ügyfél

2025.01.20.

Kereső ügyfél

2024.10.29.

Kereső ügyfél

2024.10.06.

Kereső ügyfél

2024.09.04.

Kereső ügyfél

2024.08.13.

Kereső ügyfél

2024.08.01.

Kereső ügyfél

2024.05.23.

Kereső ügyfél

2024.05.12.

Megbízó

2024.05.11.

Kereső ügyfél

2024.05.07.

Kereső ügyfél

2024.04.16.

Ferenc rendkívül segítőkész és egy nagyon korrekt értékesítő! Hálás szívvel tudom ajánlani!

Megbízó

2024.04.12.

Kereső ügyfél

2024.03.20.

Nagyon szimpatikus, segítőkész, teljesen felkészült szakember

Kereső ügyfél

2024.03.19.

Kereső ügyfél

2024.02.21.

Kereső ügyfél

2024.02.15.

Kereső ügyfél

2024.02.14.

Kedves, közvetlen segítőkész! Örülök, hogy Ő segít nekem!

Kereső ügyfél

2024.01.31.

Megbízó

2024.01.13.

Maximálisan elégedett vagyok Ferenc munkájával. Udvarias, felkészült, rugalmas.

Kereső ügyfél

2024.01.08.

Kereső ügyfél

2024.01.03.

Visszajelzett. Amit ígért azt betartotta. Őszinte és segítőkész. Várjuk a kért információkat.

Kereső ügyfél

2023.11.22.

Kereső ügyfél

2023.11.14.

Kereső ügyfél

2023.11.09.

Kereső ügyfél

2023.10.10.

Tájékozott, felkészült, udvarias volt.

Kereső ügyfél

2023.10.07.

Kereső ügyfél

2023.10.02.

Kereső ügyfél

2023.09.19.

Mindenben a segítségünkre van, a számunkra ideális otthon megtalálásában.

Kereső ügyfél

2023.09.15.

Kereső ügyfél

2023.07.26.

Kereső ügyfél

2023.06.30.

Megbízó

2023.05.27.

Kereső ügyfél

2023.04.18.

Kereső ügyfél

2023.04.17.

Remek Szakember! Sok ingatlant megnéztünk mire megtaláltuk a megfelelőt, mindig felkeszült, türelmes és segítőkész volt, bátran ajánlom bárkinek!

Kereső ügyfél

2023.03.30.

Kereső ügyfél

2023.03.21.

Segitokesz

Megbízó

2023.02.25.

Kereső ügyfél

2023.02.09.

A+

Kereső ügyfél

2023.02.04.

Kereső ügyfél

2023.01.18.

Kereső ügyfél

2023.01.13.

Kereső ügyfél

2023.01.05.

Megbízó

2022.12.20.

Kereső ügyfél

2022.12.14.

Gyors és határozott az ügyintézése, barátságos, érthetően és segítőkészen tájékoztat személyesen és elektronikus eszközökön is. Köszönöm a munkáját.

Kereső ügyfél

2022.11.08.

Kereső ügyfél

2022.11.07.

Kereső ügyfél

2022.11.03.

Nagyon kedves, mindig felkészült, pontos és segítőkész! Bátran ajánlom!

Megbízó

2022.10.13.

Megbízó

2022.09.27.

Kereső ügyfél

2022.08.26.

Kereső ügyfél

2022.08.08.

Segítőkész ,kiválóan végzi munkáját.

Kereső ügyfél

2022.08.02.

Mindenben segített, hogy számunkra a legideálisabb ingatlanhoz jussunk.

Kereső ügyfél

2022.07.06.

Kereső ügyfél

2022.06.30.

Kereső ügyfél

2022.06.29.

Felkészült, alapos, segítőkész.

Megbízó

2022.06.15.

Kereső ügyfél

2022.06.07.

Kereső ügyfél

2022.05.19.

Kereső ügyfél

2022.05.10.

Megbízó

2022.05.10.

Kereső ügyfél

2022.05.10.

Megbízó

2022.05.09.

Kereső ügyfél

2022.04.14.

Kereső ügyfél

2022.04.11.

Kereső ügyfél

2022.04.04.

Kereső ügyfél

2022.04.01.

Udvarias, segítőkész, az ügyfél igényeit tartja előtérben

Kereső ügyfél

2022.03.22.

Segítőkész, felkészült, közvetlen, udvarias.

Kereső ügyfél

2022.03.11.

Korrekt, pontos.

Kereső ügyfél

2022.02.25.

Nagyin felkészült, rugalmas, segitőkész és emparikus

Kereső ügyfél

2022.02.25.

Megbízó

2022.02.23.

Megbízó

2022.02.19.

Kereső ügyfél

2022.01.28.

Kereső ügyfél

2022.01.27.

Megbízó

2022.01.19.

Megbízó

2021.12.22.

Megbízó

2021.12.22.

Kereső ügyfél

2021.11.30.

Kereső ügyfél

2021.11.16.

Kereső ügyfél

2021.11.11.

Kereső ügyfél

2021.10.30.

Kereső ügyfél

2021.10.29.

Kereső ügyfél

2021.10.21.

Kereső ügyfél

2021.10.18.

Rugalmas, készséges.

Kereső ügyfél

2021.10.05.

Pontos , nagyon készséges udvarias

Kereső ügyfél

2021.10.05.

Udvarias,rátermett nagyon készséges

Megbízó

2021.09.25.

Kereső ügyfél

2021.09.16.

Pontos, korrekt és segítőkész

Kereső ügyfél

2021.09.13.

Kereső ügyfél

2021.09.08.

Rátermett,rendkívül készséges,nagyon jó megoldó képességű,udvarias.

Megbízó

2021.09.04.

Korrekt, megbízható, segítőkész.

Kereső ügyfél

2021.08.30.

Kereső ügyfél

2021.08.18.

Super Arbeit!!!!

Kereső ügyfél

2021.08.11.

Igazán segítőkész, türelmes és megbízható! Nagyon elégedettek vagyunk és köszönjük!

Kereső ügyfél

2021.08.04.

Korrekt,gyors,ügyfél központú,nagyon intelligens hozáállást tapasztaltam.

Megbízó

2021.08.03.

Korrekt, rugalmas, megbízható.

Kereső ügyfél

2021.07.24.

Kereső ügyfél

2021.07.22.

Megbízó

2021.07.02.

Teljesen korrekt, segítőkész, rugalmas és megbízható, felkészült szakember.

Kereső ügyfél

2021.06.17.

Kereső ügyfél

2021.05.28.

Kereső ügyfél

2021.05.15.

Kereső ügyfél

2021.05.14.

Kereső ügyfél

2021.04.23.

Kereső ügyfél

2021.04.15.

Megbízó

2021.04.14.

Kereső ügyfél

2021.04.12.

Megbízó

2021.04.10.

Kereső ügyfél

2021.03.19.

Rendkívül felkészült és segítőkész ingatlanértékesítő.

Kereső ügyfél

2021.03.12.

Szimpatikus, felkészült, segítőkész, empatikus egyéniség.

Megbízó

2021.02.02.

Kereső ügyfél

2021.01.28.

Az értékesítő maximálisan jól végezte a közvetítést!Neki járna az 5 csillag. Az ingatlan sajnos problémás számomra.

Kereső ügyfél

2021.01.11.

Megbízó

2021.01.06.

Megbízó

2020.12.05.

Kereső ügyfél

2020.11.24.

Pontos megbízható infórmációkkal látott el. Továbbra is várom ajánlatait Üdv H.Platform Hungary Kft. Haba Ferenc ügyvezető

Kereső ügyfél

2020.10.19.

Kiváló! :)

Kereső ügyfél

2020.10.02.

Pontos, segítőkész, kedves ! Kiváló!

Megbízó

2020.09.26.

Megbízó

2020.03.17.

Rendkívül jól kommunikál, érthető, logikus, átlátja az ingatlanpiaci folyamatokat, jó tanácsokat ad. Határozott, intelligens, udvarias személyiség.


Írjon nekem!
A siker csak rajtad múlik
A siker csak
rajtad múlik