house36

Vacsiközi luxus ingatlan tele extrákkal!

K

#3620882 - Kecskemét - Eladó - Ház

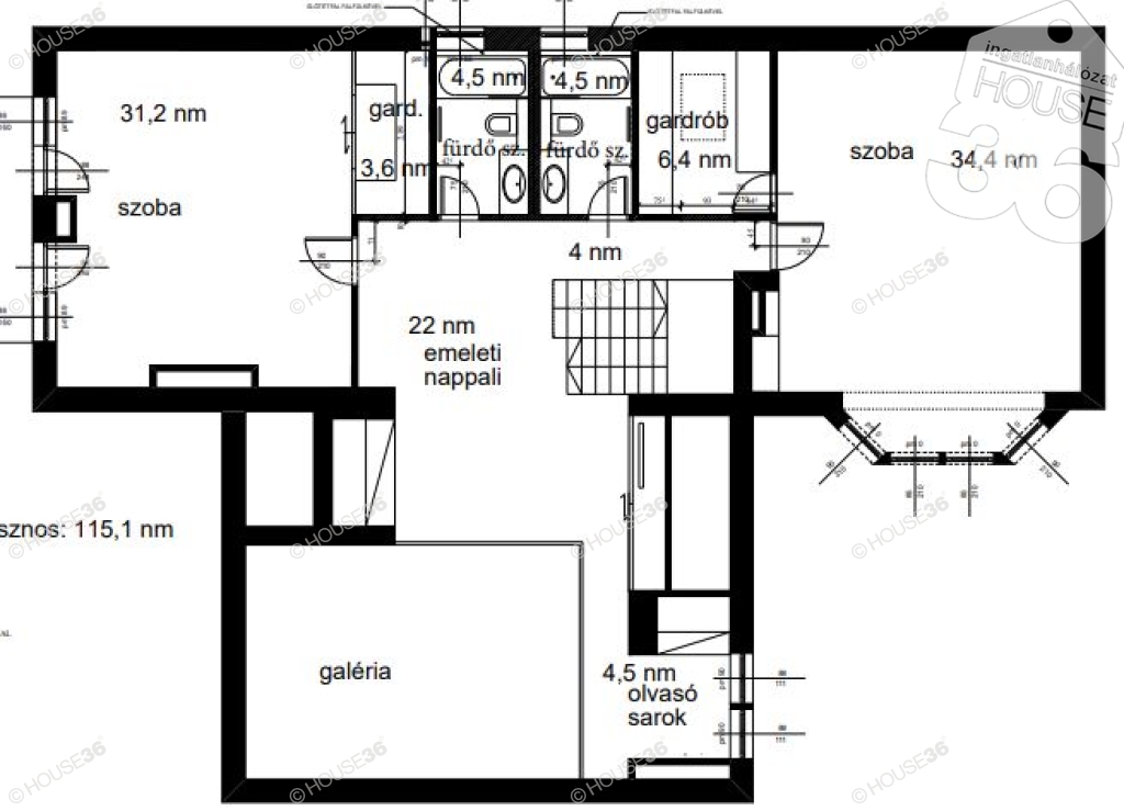
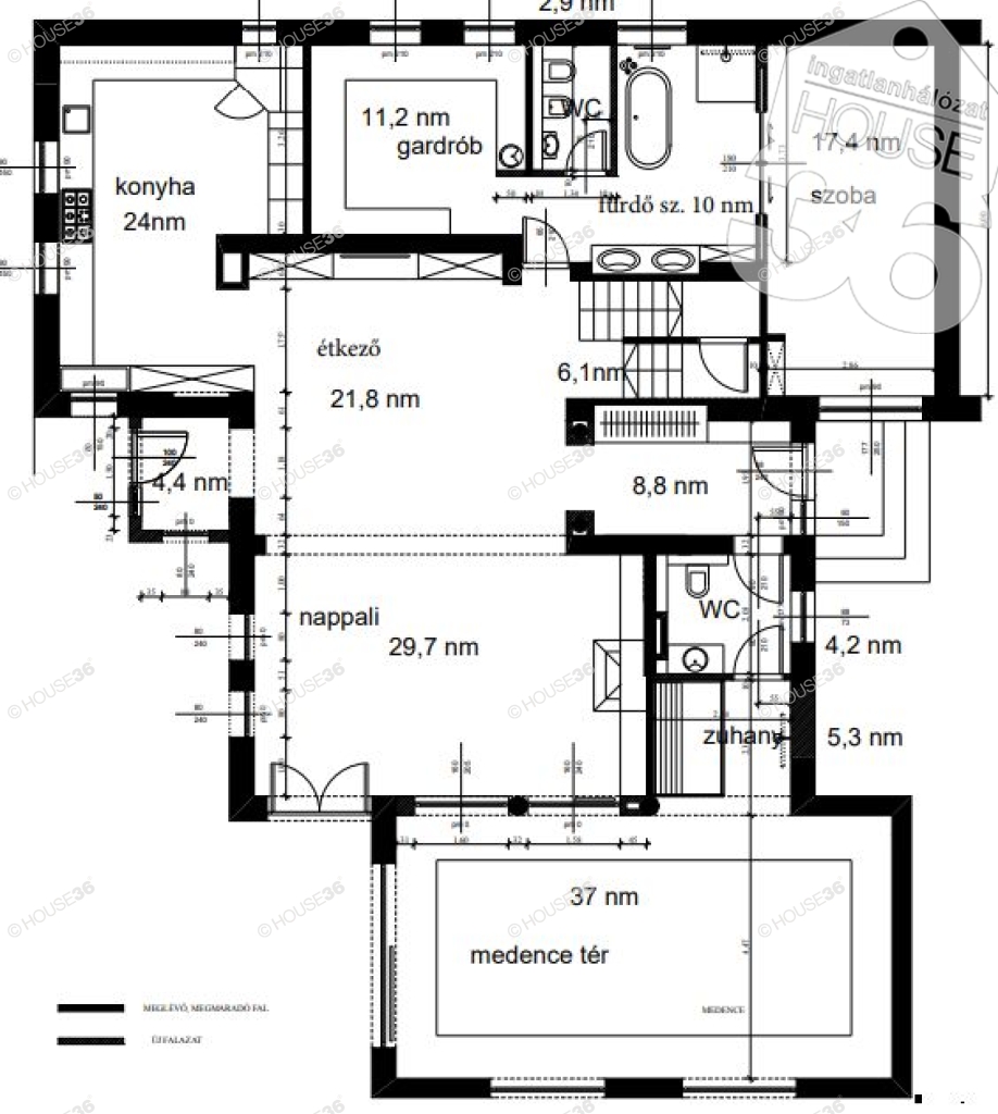
Kecskemét egyik legkedveltebb és legjobb zsákutcájában, ami a Vacsiközben található, 600 m2-es telken, 3 szinten 293 m2-es, 5 szobás + 5 fürdőszobás + 3 gardróbos, nagy terekkel-és kialakításokkal, belsőépítész által álmodott-és újra gondolt luxus családi ház számtalan extrákkal eladó! Minden szoba lakosztály, saját gardróbbal, fürdővel. A ház még nincs teljesen kész, az udvar, a medencetér és a vendégház még befejezésre vár. Mindenképp látni kell!

Tudnivalók:

-tégla építés, 15 cm-es homlokzati szigeteléssel
-monolit vasbeton födém
-új vezetékelések, burkolatok, szaniterek
-műanyag-és fa nyílászárók
-óriás terek (konyha/nappali/étkező közel 80 m2)
-108 m2-es pinceszint, tárolókkal, gépészeti helységgel, dupla garázzsal, szabadidő szobával
-hőszivattyú, zárt égésterű gázcirkó fűtés, padlófűtés
-kandalló (Szabó kandalló)
-burkolt beltéri medence (terasz-és nappali felé) még befejezésre vár, hozzá zuhanyzó-és wc
-minőségi burkolatok, szaniterek (Valentino burkolatok, Hansgrohe csaptelepek stb.)
-kb.30 m2-es galériázott vendégház (szoba/konyha/fürdő)
-óriás egyedi konyhabútor, rejtett spájzzal, tele tárolókkal, munkapulttal
-NEFF típusú konyhai gépek, dupla hűtő
-igény-és megegyezés szerint akár bútorozva (olasz egyedi bútorok, kézzel csiszolt egyedi impozáns csillár, egyedi függönyök)
-terasz 40 m2
-elektromos redőny kiállás
-riasztó-és kamerarendszer
-em.-i galériás nappali, olvasó sarok

Opcionálisan még kialakíthatóak fsz.-en és em.-en is további szobák!

Az adatok tájékoztató jellegűek!

FIGYELEM! Az adatok Megbízónktól kapott adatok alapján készült, pontosságáért felelősséget nem tudunk vállalni!


Nincs megjeleníthető értékelés.
Ügyvitel: Eladó
Ingatlan típusa: Ház
Ház altípus: Családi ház
Építési mód: Tégla
Homlokzati szig.: 15 cm
Fűtési mód: Gázfűtés (cirkó), Padlófűtés, Hőszivattyús
Ingatlan állapota: Luxus
Parkolási lehetőségek: Dupla garázs
Közművek: Összközmű
Alapterület: 293 m2
Telek területe: 600 m2
Erkély: nem
Erkélyek területe: 25 m2
Szobák száma: 5 db
Fürdőszobák száma: 5 db
Építés éve: 2000
Felújítás éve: 2024
Pince van: Van
Pince területe: 108 m2
Esztétikai felújítások: Burkolatcsere, Konyhabútorcsere, Fürdőszoba felújítás, Festés
Műszaki felújítások: Vezetékcsere, Nyílászárócsere, Szigetelés, Fűtéskorszerűsítés
Tetőfedés anyaga: Cserép
Tetőtér beépíthető: Beépített
Nyílászárók fajtája: Fa, Műanyag
Melléképületek száma: 1 db
Melléképületek területe: 30 m2
Extrák: Klíma, Riasztó, Elektromos garázskapu, Beltéri medence
Betonút melletti: Igen
Közvilágítás: Van
Buszmegálló távolsága kb: 10 m
Bolt távolsága kb: 20 m
Iskola/óvoda távolsága: 20 m
Ingatlan tulajdoni helyzete: Osztott
Figyelem az adatlap megbízónktól kapott adatok alapján készült, pontosságáért felelősséget nem tudunk vállalni!
Bagó Diána
Vezető értékesítő
Értékesítői fokozat:
Értékesítői fokozat
Kép Kép Kép Kép Kép Kép
Ügyfél értékelés:
4.7 (162 értékelés alapján)

Kereső ügyfél

2025.11.21.

Izgalmas

Megbízó

2025.11.14.

Kereső ügyfél

2025.10.29.

Kereső ügyfél

2025.08.06.

Kereső ügyfél

2025.08.01.

Kereső ügyfél

2025.07.09.

Megbízható és figyelmes a kolléganő

Megbízó

2025.06.21.

Kereső ügyfél

2025.05.30.

Kereső ügyfél

2025.05.26.

Kereső ügyfél

2025.04.29.

Kereső ügyfél

2025.03.20.

Megbízó

2025.01.10.

Kereső ügyfél

2025.01.08.

Kereső ügyfél

2024.11.19.

Kereső ügyfél

2024.11.06.

Rövid, korrekt bemutatása az ingatlannak. Elégedett voltam.

Megbízó

2024.10.25.

Kereső ügyfél

2024.09.11.

Kereső ügyfél

2024.09.05.

Megbízó

2024.09.05.

Kereső ügyfél

2024.08.30.

Korrekt, segítőkész.

Megbízó

2024.08.16.

Kereső ügyfél

2024.07.27.

Megbízható, figyelmes, kedves.

Kereső ügyfél

2024.04.07.

Kereső ügyfél

2024.03.22.

Kereső ügyfél

2024.02.26.

Kereső ügyfél

2024.01.22.

Megbízó

2023.12.28.

Megbízó

2023.12.01.

Megbízó

2023.10.24.

Megbízó

2023.08.15.

Megbízó

2023.06.19.

Kereső ügyfél

2023.06.12.

Kereső ügyfél

2023.04.24.

Kereső ügyfél

2023.03.22.

Kereső ügyfél

2023.03.06.

Szerencsésnek tartom azt hogy ingatlan értékelőnek Bagó Diánát választottam! Egyszerűen dinamikus, odafigyel a vásárló kéréseire, kérdéseire, széleskörű felvilágositással szolgál az ingatlan vasárlással kapcsolatos MINDEN kérdésre. Köszönöm Bagó Diána és House36!!!

Kereső ügyfél

2023.01.24.

Kereső ügyfél

2023.01.20.

Kereső ügyfél

2023.01.12.

Kereső ügyfél

2022.12.06.

Kereső ügyfél

2022.07.01.

Megbízó

2022.07.01.

Kereső ügyfél

2022.06.08.

Megbízó

2022.05.27.

Kereső ügyfél

2022.03.08.

Nagyon kedves volt, segítőkész

Megbízó

2022.03.03.

Kereső ügyfél

2022.02.18.

Diána, kedves, segítőkész, amiben tudott segített. Abszolut elégedett vagyok.

Kereső ügyfél

2022.02.18.

Megbízó

2022.02.16.

Kereső ügyfél

2022.02.02.

Kereső ügyfél

2022.02.01.

Megbízó

2022.01.25.

Kereső ügyfél

2022.01.17.

Megbízó

2021.12.24.

Megbízó

2021.12.13.

Megbízó

2021.11.29.

Kereső ügyfél

2021.11.23.

Kereső ügyfél

2021.11.15.

Kereső ügyfél

2021.10.28.

Kereső ügyfél

2021.10.14.

Megbízó

2021.10.14.

Kereső ügyfél

2021.10.13.

Kereső ügyfél

2021.10.13.

Kereső ügyfél

2021.10.07.

Kereső ügyfél

2021.10.06.

Kereső ügyfél

2021.09.14.

Kereső ügyfél

2021.09.07.

Megbízó

2021.08.11.

Kereső ügyfél

2021.07.28.

Segítőkész rugalmas hiteles

Megbízó

2021.07.28.

Kereső ügyfél

2021.07.25.

Pontos érkezés. Korrekt tájékoztatás. Segítő attitűd.

Kereső ügyfél

2021.07.06.

Megbízó

2021.06.29.

Töröljétek már végre a hirdetést, nem aktuális!!!

Megbízó

2021.06.29.

Töröljétek légyszíves ezt a hirdetést! Köszönöm!

Kereső ügyfél

2021.06.28.

Megbízó

2021.06.07.

Kereső ügyfél

2021.05.28.

Kereső ügyfél

2021.05.06.

Kereső ügyfél

2021.03.29.

Kereső ügyfél

2021.03.02.

Kereső ügyfél

2021.02.18.

Kereső ügyfél

2021.02.15.

Kereső ügyfél

2021.02.04.

Kereső ügyfél

2021.02.03.

Kereső ügyfél

2021.01.17.

Megbízó

2020.11.27.

Mindennel is!

Kereső ügyfél

2020.11.24.

Dianna munkájával nagyon meg vagyunk elégedve.Nagyon kedves ,barátságos és mindent részletesen megmutogatott,elmagyarázott,megis vettüka lakást. Munkáját 5 csillagosra értékeljük. üdvüzlettel Hajagos Lászlóés ffelesége e lesége

Kereső ügyfél

2020.11.04.

Kedves, hozzáértő, talpraesett.

Kereső ügyfél

2020.10.12.

Csak jó véleményem van. Kedves, őszinte, profi, mosolygós.

Megbízó

2020.10.03.

Megbízó

2020.09.23.

Szia Dia! Elkészül a Sóhordó út út aszfaltozása a kapunkig! A belső utak is most kerülnek sorra!

Megbízó

2020.09.23.

Szia Dia! Elkészül a Sóhordó út út aszfaltozása a kapunkig! A belső utak is most kerülnek sorra!

Megbízó

2020.08.05.

Mindennel teljesen elégedett vagyok,legfőképp Diával

Kereső ügyfél

2020.07.21.

Kereső ügyfél

2020.06.19.

Kereső ügyfél

2020.06.02.

Rugalmas tájékozott és megbízható.

Kereső ügyfél

2020.05.26.

Kereső ügyfél

2020.05.11.

Megbízó

2020.05.02.

Kereső ügyfél

2020.02.20.

Megbízó

2020.02.07.

1 1/2 HÓNAP - 1 HELYSZÍNI MEGTEKINTÉS ???

Kereső ügyfél

2020.02.05.

Kereső ügyfél

2020.01.23.

Nem volt negativ tényező. Korrekt tájékoztatás, pontos megjelenés , kapcsolattartás. Nagyon elégedett vagyok. Továbbiakban is számítok a segítségére.

Megbízó

2020.01.22.

Kereső ügyfél

2020.01.17.

Kereső ügyfél

2020.01.12.

Kereső ügyfél

2020.01.09.

Kereső ügyfél

2019.12.12.

Kereső ügyfél

2019.12.05.

Nagyon segítőkész informatív , azonnal közös nevezőre kerültünk. Pillanatok alatt felmérte mit szeretnék és már másnap kaptam az ajánlatokat .

Kereső ügyfél

2019.12.04.

Kereső ügyfél

2019.11.29.

Kereső ügyfél

2019.11.28.

Kereső ügyfél

2019.11.26.

Kereső ügyfél

2019.11.06.

Kedves, pontos, felkészült és közvetlen szakembernek ismertem meg. Örülök, hogy az ingatlan bemutatása könnyed és tömör volt. Kérdéseimre kielégítő választ kaptam Tőle.

Kereső ügyfél

2019.07.30.

Tökéletes munkatempó, hatékony és figyelmes szolgáltatás.

Kereső ügyfél

2019.05.31.

Kereső ügyfél

2019.04.24.

Kereső ügyfél

2019.04.17.

Kereső ügyfél

2019.03.23.

Kereső ügyfél

2019.03.21.

Minden fontos információt tudott a házról, pontos, tisztelettudó.

Kereső ügyfél

2019.02.17.

Nagyon segítőkész és felkészült. Ajánlom mindenkinek!

Megbízó

2019.02.12.

Kereső ügyfél

2019.01.30.

Kereső ügyfél

2019.01.29.

Pontos,felkészült volt a lakås bemutatásnál.

Kereső ügyfél

2019.01.17.

Kereső ügyfél

2019.01.15.

Kereső ügyfél

2019.01.11.

Kereső ügyfél

2018.12.21.

Szakmailag felkészült, korrekt információkat kaptam, gyors, pontos, udvarias.

Kereső ügyfél

2018.11.30.

Kereső ügyfél

2018.11.30.

Kereső ügyfél

2018.11.07.

Kereső ügyfél

2018.11.03.

Nagyon kedves, megtesz mindent ügyfeleiét, felkészült, figyelmes, körültekintő, segítőkész. **********

Kereső ügyfél

2018.11.02.

Segítőkész és közvetlen ėrtėkesítő.

Megbízó

2018.10.22.

Kereső ügyfél

2018.10.08.

Dia nagyon kedves és segítőkész. Szerencsések vagyunk, hogy ő segít nekünk a vásárlásban.

Kereső ügyfél

2018.08.14.

Megbízó

2018.07.25.

Kereső ügyfél

2018.07.16.

Korrekt,felkészült.

Kereső ügyfél

2018.06.19.

Felkészült és pontos volt

Megbízó

2018.06.11.

Kereső ügyfél

2018.06.09.

Kereső ügyfél

2018.06.09.

Kereső ügyfél

2018.06.09.

Kereső ügyfél

2018.06.04.

Kereső ügyfél

2018.05.10.

Rugalmas, pontos, gyors, szakmailag felkészült.

Megbízó

2018.04.12.

Megbízó

2018.04.11.

Kereső ügyfél

2018.03.23.

Kereső ügyfél

2018.03.14.

Kereső ügyfél

2018.02.21.

Rugalmasság, segítőkészség, profizmus.

Kereső ügyfél

2018.02.03.

Kereső ügyfél

2018.01.30.

Tökéletes Bemutató! Köszönöm!

Kereső ügyfél

2018.01.30.

Kereső ügyfél

2018.01.16.

Feladatát kimagaslóan végzi,preciz pontos, figyelembe veszi az ügyfelek igényeit.

Kereső ügyfél

2018.01.12.

Körültekintő, preciz, pontos. Minden kérdésünkre kielégitő, maximális tájékoztatást adott.

Kereső ügyfél

2018.01.09.

Kereső ügyfél

2018.01.08.

Kereső ügyfél

2017.11.16.

Kereső ügyfél

2017.11.07.

Profi ertekesito, figyelmes, okos, tajekozott, felkeszult, az elso szo profi


Írjon nekem!
A siker csak rajtad múlik
A siker csak
rajtad múlik