house36

Új építés Nappali + 3 + Duplagarázs

K

#3620771 - Kecskemét - Eladó - Ház

Új
Kizárólagos
megbízás
Ár: 69.5 M Ft
 
*** CSAK A HOUSE36 KÍNÁLATÁBAN ***

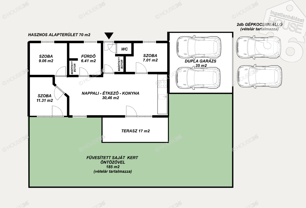
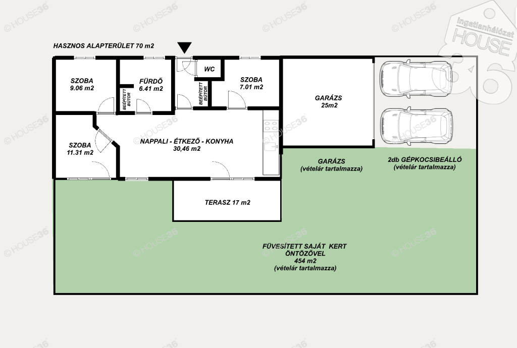
Kecskemét Alsószéktón újépítésű környezetben (I. ütemben épülő) eladó 70 m2-es sorházi lakások saját kertkapcsolattal (89-204m2 saját kerttel), terasszal (17 m2), saját parkolókkal vagy duplagarázzsal (35m2). (az ár tartalmazza) L1

A hírdetésben szereplő képek a minta lakásokban készültek!

- Átadás 2026. IV.negyedév-től
- 30-as tégla falak 15cm homlokzati szigeteléssel
- Nappali + 3 szoba
- Mosdó, zuhany, sarokkád és szaniterek
- 3 rétegű műanyag nyílászárók hálószobákon redőnyökkel
- Bosch kondenzációs kazán padlófűtéssel szerelve

AZ ÁR TARTALMAZZA:
- 2db INVERTERES KLÍMA
- Beépített, gépesített konyhabútor (hűtő-fagyasztó, főzőlap, sütő, mosogató)
- Beépített szekrények ( előszoba, konyha, fürdő )
- Terasz 17m2-es emelt terasz
- Parkosított (füvesített) saját udvar automata öntözővel
- Minden lakáshoz 2db szilárd burkolatú parkoló, vagy 2db parkoló és dupla garázs (35m2)
- Padlástéri tároló
- Teljes kül és beltéri LED világítás

LAKÁSBESZÁMÍTÁS, ÉRTÉKEGYEZTETÉSSEL, HOUSE36 KEDVEZMÉNNYEL

AZ ÉPÜLŐ INGATLANOK KÜLTERÜLETEN HELYEZKEDNEK EL, AZ OTTHON START PROGRAM 3%-OS HITELÉRE NEM FELEL MEG! MINDEN EGYÉB KEDVEZMÉNYES FINANSZÍROZÁS PL. CSOK+ IGÉNYELHETŐ!

Figyelem az adatlap megbízónktól kapott adatok alapján készült, pontosságáért felelősséget nem tudunk vállalni!
Hívjon, szolgáltatásaink vevőink részére ingyenesek
AMENNYIBEN ÚJ OTTHONA MEGVÁSÁRLÁSHOZ JELENLEGI INGATLANA ELADÁSRA VAN SZÜKSÉG, KERESSEN BIZALOMMAL!
Nincs megjeleníthető értékelés.
Ügyvitel: Eladó
Ingatlan típusa: Ház
Ház altípus: Sorház
Építési mód: Tégla
Homlokzati szig.: 15 cm
Fűtési mód: Padlófűtés, Klíma
Ingatlan állapota: Új
Parkolási lehetőségek: Dupla garázs, Gépkocsi beálló
Közművek: Összközmű
Energetikai besorolás: B
Alapterület: 70 m2
Telek területe: 185 m2
Erkély: nem
Terasz(ok) területe: 17 m2
Szobák száma: 4 db
Fürdőszobák száma: 1 db
Építés éve: 2026
Pince van: ---
Tetőfedés anyaga: Cserép
Födém szig.: 30 cm
Tetőtér beépíthető: Nem
Nyílászárók fajtája: Műanyag, Redőnyökkel ellátva
Extrák: Klíma, Automata öntözőrendszer
Betonút melletti: Nem
Közvilágítás: Van
Földút hossza kb (betonúttól): 150 m
Buszmegálló távolsága kb: 150 m
Ingatlan tulajdoni helyzete: Saját
Figyelem az adatlap megbízónktól kapott adatok alapján készült, pontosságáért felelősséget nem tudunk vállalni!
Földes Péter
Irodavezető
Értékesítői fokozat:
Értékesítői fokozat
Kép Kép Kép Kép Kép Kép Kép Kép Kép
Ügyfél értékelés:
5 (40 értékelés alapján)

Kereső ügyfél

2025.01.10.

Kereső ügyfél

2024.12.19.

Megbízó

2024.11.01.

Kereső ügyfél

2024.06.18.

Kereső ügyfél

2024.06.18.

Kereső ügyfél

2024.06.18.

Megbízó

2024.04.18.

Megbízó

2024.03.17.

Megbízó

2024.01.16.

Kereső ügyfél

2023.11.07.

Minden rendben volt.

Kereső ügyfél

2023.10.24.

Korrekt tájékoztatás;barátságos, laza, s szavaiból kicseng, mennyire szereti, munkáját.

Megbízó

2023.03.16.

Kereső ügyfél

2023.01.20.

Kommunikáció, szaktudás, érthető és korrekt tájékoztatás-abszolút elégedett vagyok

Kereső ügyfél

2022.07.04.

Vásárlóként kerültünk most kapcsolatba Péterrel, aki nagyon kedves, segítőkész, türelmes volt hozzánk. Minden kérdésünkre kielégítő válasszal szolgált, pedig nagyon sok, részletekbe mélyen belemenő kérdésünk volt a megtekintett ingatlanokkal kapcsolatban. Sikeres üzletnek nézünk elébe, melyben jelentős szerepet játszott, hogy Péter kiemelkedő szakmai színvonalon végzi munkáját és hozzáállásából mindig azt éreztem, hogy számára nagyon fontos a vásárló elégedettsége. Sokkal könnyebb volt így a d

Megbízó

2022.07.04.

Megbízó

2022.06.04.

Kereső ügyfél

2021.12.03.

Megbízó

2021.10.28.

Megbízó

2021.10.21.

Megbízó

2021.08.01.

Kereső ügyfél

2021.04.20.

Kereső ügyfél

2020.12.01.

Kereső ügyfél

2020.10.30.

Kereső ügyfél

2020.10.27.

Kereső ügyfél

2020.07.23.

Kifogástalan

Kereső ügyfél

2020.07.06.

Segítőkész, kérdéseinkre készségesen válaszolt.

Kereső ügyfél

2020.06.26.

Korrekt volt.

Kereső ügyfél

2020.06.17.

Kereső ügyfél

2020.05.26.

Kereső ügyfél

2020.05.22.

Kereső ügyfél

2019.09.10.

Kereső ügyfél

2019.07.25.

Meg vagyok elégedve. Arra az időpontra jött, amikor kértem. Megnézhettem az ingatlant, minden rendben volt.

Megbízó

2019.06.19.

Megbízó

2019.06.19.

Megbízó

2019.02.11.

Kereső ügyfél

2018.08.22.

Kereső ügyfél

2018.08.06.

Kereső ügyfél

2018.06.19.

Megbízó

2018.06.01.

Kereső ügyfél

2018.02.24.


Írjon nekem!
A siker csak rajtad múlik
A siker csak
rajtad múlik