house36

Start hitelre az egyik legjobb ajánlat!

K

#3620727 - Kecskemét - Eladó - Ház

Ár: 69.9 M Ft
 
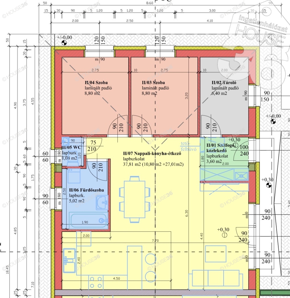
Kecskemét vonzáskörzetében Szabó Sándor Telepen, 2026 szeptemberi átadással kínáljuk megvételre, ikerház egyik felét, amely nappali + 2 szobás.

Jellemzői:
  •  nettó 72 m2
  •  ikerház  belső része
  •  nappali + 2 szoba
  •  fürdő és WC külön
  •  gáz cirkó​​, padlófűtés
  •  klíma
  •  tégla építés
  • választható burkolatok
  • START hitel igénybe vehető, 10% foglalóval
  • gardrób
  • terasz 9,4 m2


A tulajdonos kérésére az ingatlan bemutatása egy személyes konzultáció után történik, ahol részletes tájékoztatást kaphat az ingatlan paramétereiről és egyéb kényelmi szolgáltatásairól !  Figyelem az adatlap megbízónktól kapott adatok alapján készült, pontosságáért felelősséget nem tudunk vállalni! 
Az ingatlant megtekintett ügyfelek véleménye alapján:
5
(1 értékelés)
kiváló
Ügyvitel: Eladó
Ingatlan típusa: Ház
Ház altípus: Ikerház
Építési mód: Tégla
Homlokzati szig.: 15 cm
Fűtési mód: Gázfűtés (cirkó), Padlófűtés, Klíma
Ingatlan állapota: Új
Energetikai besorolás: A
Alapterület: 71.5 m2
Telek területe: 352 m2
Erkély: nem
Terasz(ok) területe: 10 m2
Szobák száma: 3 db
Fürdőszobák száma: 1 db
Pince van: ---
Tetőfedés anyaga: Cserép
Födém szig.: 30 cm
Tetőtér beépíthető: ---
Nyílászárók fajtája: Műanyag, Redőnyökkel ellátva
havi vagy éves gázszámla (fűtésköltség): 10000
Extrák: Klíma
Betonút melletti: Igen
Közvilágítás: Van
Buszmegálló távolsága kb: 300 m
Bolt távolsága kb: 300 m
Iskola/óvoda távolsága: 300 m
Ingatlan tulajdoni helyzete: Saját
Figyelem az adatlap megbízónktól kapott adatok alapján készült, pontosságáért felelősséget nem tudunk vállalni!
Valastyán Mihály
Vezető értékesítő
Értékesítői fokozat:
Értékesítői fokozat
Kép Kép Kép Kép Kép Kép Kép
Ügyfél értékelés:
4.9 (134 értékelés alapján)

Kereső ügyfél

2026.04.14.

Előzetes egyeztetés nélkül mentem be hozzá az irodába; készséges volt, azonnal kereste a megadott ingatlanokat és további információkat adott. Ezek alapján egy óra múlva már mentünk is a helyszínekre megtekinteni. Maximálisan elégedett voltam a hozzáállásával és a kapott információkkal

Kereső ügyfél

2026.01.12.

Megbízó

2025.05.28.

Megbízható, gyors, rengeteg ingatlanunkat adta már el. Csak ajánlani tudom!

Megbízó

2025.05.19.

A Mihály hozzáállása az eladáshoz kiváló és hozzáértésről tanúskodik!

Megbízó

2024.08.06.

Köszönjük szépen. Remek kommunikáció, hozzáállás.

Megbízó

2024.07.30.

Megbízó

2024.07.05.

Egyszóval profi!

Kereső ügyfél

2024.05.31.

Megbízó

2024.05.13.

Megbízó

2024.01.13.

Megbízó

2024.01.11.

Kereső ügyfél

2023.12.07.

Kereső ügyfél

2023.11.14.

Teljes körű tájékoztatás korekt válaszok egyértelmű egyén .

Kereső ügyfél

2023.03.08.

Maximálisan elégedett voltam!!

Kereső ügyfél

2023.02.14.

Kedves, korrekt, pontos, segítőkész!

Megbízó

2023.01.17.

Kereső ügyfél

2023.01.16.

Kereső ügyfél

2023.01.13.

Kereső ügyfél

2023.01.13.

Kereső ügyfél

2023.01.06.

Kereső ügyfél

2022.09.02.

Kereső ügyfél

2022.08.26.

Kereső ügyfél

2022.08.25.

Maximàlisan meg voltunk elégedve az értékesìtõ úrral, az igényeimnek minden szempontbòl megfelelõ ingatlant mutatott. Az ingatlanpiac ès a jogi szabàlyok teljes ismeretével rendelkezik, mindemellett jò megjelenésû, kellemes humorú, intelligens egyén. Köszönjük kivàlò szakmai hozzàértését!

Megbízó

2022.07.05.

Kereső ügyfél

2022.06.23.

Kereső ügyfél

2022.06.09.

Megbízó

2022.06.05.

Kereső ügyfél

2022.05.03.

Kereső ügyfél

2022.05.02.

Nagyon segítőkész, kedves és nagy odaadással próbálja az igényeinknek megfelelő ingatlant megtalálni. Nagyon rugalmas!

Megbízó

2022.04.27.

Megbízó

2022.04.02.

Kereső ügyfél

2022.03.28.

Az ország legjobb ingatlanosa. Segítőkész, korrekt, becsületes.

Kereső ügyfél

2022.03.07.

Mindennel.

Kereső ügyfél

2022.03.02.

Megbízó

2022.03.01.

Kereső ügyfél

2022.02.14.

Mindennel elégedett voltam

Kereső ügyfél

2022.01.31.

Mindennel meg voltam elégedve!

Megbízó

2022.01.27.

Kereső ügyfél

2022.01.24.

Kereső ügyfél

2022.01.20.

Kereső ügyfél

2022.01.17.

Kereső ügyfél

2022.01.09.

Eszt a munkát neki találták ki!!! Csak így tovább! Sok szerencsét kívánok neki!!!!!

Kereső ügyfél

2022.01.05.

Kereső ügyfél

2022.01.04.

Tökéletes, gyors ügyintézés, profi lakásbemutató, még külföldről is gördülékenyen ment a dolog.

Kereső ügyfél

2021.12.20.

Kereső ügyfél

2021.12.14.

Kereső ügyfél

2021.11.06.

Kereső ügyfél

2021.10.27.

Megbízó

2021.08.31.

Megbízó

2021.08.12.

profi, lehengerlő, precíz!!! csak ajánlani tudom bárkinek!

Kereső ügyfél

2021.07.05.

Kereső ügyfél

2021.06.28.

Figyelmes, az érdeklődésemnek megfelelő ingatlanokat ajánlott. A helyszíni és irodai munkája magabiztosságot és tapasztalatot mutatott.

Kereső ügyfél

2021.06.28.

Kereső ügyfél

2021.06.07.

Megbízó

2021.06.02.

Megbízó

2021.05.05.

Kereső ügyfél

2021.04.28.

Teljeskörű korrekt értékesítés.

Kereső ügyfél

2021.04.23.

Kereső ügyfél

2021.04.17.

Kereső ügyfél

2021.04.16.

Kereső ügyfél

2021.04.16.

Kereső ügyfél

2021.04.15.

Kereső ügyfél

2021.03.25.

Pontos, precíz, segítőkész, humoros, gyors, tökéletes.

Kereső ügyfél

2021.03.16.

Megbízó

2021.03.16.

Kereső ügyfél

2021.02.22.

Kereső ügyfél

2021.02.22.

Kereső ügyfél

2021.02.17.

csak ajánlani tudom!!

Megbízó

2021.02.09.

Kereső ügyfél

2021.02.03.

Ápolt meg jelenésü. kedves aranyos, megbizható,Krorekt .azonnal intézkedik.

Kereső ügyfél

2021.01.27.

Korremt. Nem nyomul. Amit mond az is van.

Kereső ügyfél

2021.01.27.

Kereső ügyfél

2021.01.22.

Kereső ügyfél

2021.01.21.

Kereső ügyfél

2021.01.17.

Kereső ügyfél

2021.01.16.

Kereső ügyfél

2020.12.25.

Kedves segítőkész, maximálisan az ügyfél igényeit tartja szem előtt. Emellett pozitív, energikus közvetlen és humoros személy.

Kereső ügyfél

2020.12.17.

minden csillagos ötös nagyon rendben van a csapat!

Kereső ügyfél

2020.12.14.

Megbízó

2020.12.09.

Kereső ügyfél

2020.12.07.

Kereső ügyfél

2020.11.03.

Kereső ügyfél

2020.10.27.

Kereső ügyfél

2020.10.21.

Misit rég óta ismerem, és most is mint az már megszokott tőle, a maximális profizmussal és segítőkészséggel foglalkozik az általam meghatarozott paraméterek alapján terveim megvalósításán.

Kereső ügyfél

2020.10.14.

Megbízó

2020.10.09.

Kereső ügyfél

2020.09.24.

Kereső ügyfél

2020.09.14.

Kereső ügyfél

2020.09.10.

Teljesen korrekt. Nem tukmàl. Elmondja amit kell.

Kereső ügyfél

2020.09.07.

Kereső ügyfél

2020.09.01.

Kereső ügyfél

2020.07.21.

Mindennel nagyon elégedett voltam

Megbízó

2020.07.14.

Kereső ügyfél

2020.06.24.

Kereső ügyfél

2020.06.24.

Kereső ügyfél

2020.06.23.

Kereső ügyfél

2020.06.19.

Kereső ügyfél

2020.06.17.

Kereső ügyfél

2020.05.20.

Kereső ügyfél

2020.04.25.

Segítőkész,rugalmas,pozítiv hozzáállású fiatalember!!! Ami nem szimpatikus,hogy pár nap után még nem adta el az ingatlant!

Kereső ügyfél

2020.02.20.

Kereső ügyfél

2020.02.20.

Megbízó

2020.02.19.

Kereső ügyfél

2020.01.23.

Megbízó

2020.01.15.

Kereső ügyfél

2020.01.06.

Megbízó

2019.12.03.

Kereső ügyfél

2019.11.29.

Kereső ügyfél

2019.11.28.

Egy olyan értékesítő munkatársukkal ismerkedtem meg aki a lényegre törekedve, a H36 és az én érdekem között a megoldást kereste.

Kereső ügyfél

2019.11.08.

Megbízó

2019.11.05.

Kereső ügyfél

2019.10.24.

Megbízó

2019.10.08.

Megbízó

2019.09.30.

Kereső ügyfél

2019.09.04.

Megbízó

2019.08.28.

Megbízó

2019.08.27.

Kereső ügyfél

2019.08.16.

Nagyon beszédes, segítőkész, még a késő esti órákban is.

Kereső ügyfél

2019.08.15.

Kereső ügyfél

2019.08.12.

Kedves, korrekt, pontos, hagy idöt körülnézni, szem elött tartja a vásárló kívánságait Jó tanácsaival segít az esetleges átalakitásokkal , javításokkal kapcsolatosan,szempatikus Jó humorával gyors feszültségmentes légkört teremt

Kereső ügyfél

2019.07.09.

Kereső ügyfél

2019.07.05.

Kereső ügyfél

2019.06.29.

Kereső ügyfél

2019.06.15.

Kívánom mindenkinek, hogy ilyen ingatlanossal kerüljön kapcsolatba. Rendkívül aggilis, figyelmes, odafigyel mindenre, tájékozott, tud tanácsot adni, a vevő érdekekit maximálisan figyelembe veszi. Nem erőszakos, inkább próbája az ingatlan pozítív oldalát bemutatni. Hiányosságot nem tapasztam.

Megbízó

2019.05.26.

Kereső ügyfél

2019.05.21.

Kereső ügyfél

2019.05.15.

Kereső ügyfél

2019.04.25.

Segítőkész volt.

Kereső ügyfél

2019.01.23.

Megbízó

2019.01.16.

Kereső ügyfél

2019.01.04.

Minden rendben volt. Köszönöm ,hogy megmutatta az ingatlanokat.

Kereső ügyfél

2019.01.04.

Mihály nagyon segítőkész .


Írjon nekem!
A siker csak rajtad múlik
A siker csak
rajtad múlik