house36

Költözzön Kecskemétre!

K

#3620452 - Kecskemét - Eladó - Ház

Ár: 85 M Ft
 
Kényelmes, nagy, új építésű családi ház egy remek lakóparkban ELADÓ!
Alkalmas 3 %-os  hitelre és csok-ra is.



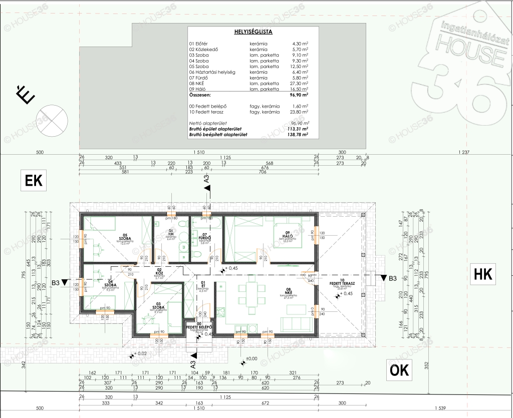
- 96,9 m2 nettó lakótér
+ 1,6 m2 fedett belépő
+ 24,4 m2 fedett terasz
- 575 m2 telek

- 4 szoba
- 2 Wc
- 26 m2 fedett terasz
- fedett belépő
- nagy nappali,konyha ,étkező
- 138.78 m2 bruttó
-  padlófűtés
- hőszivattyú
Nézzük meg akár hét végén is minta házainkat.






Választható színek, szaniterek, nyílászárók, burkolatok.

Műszaki tartalomért hívja értékesítőinket.
További tájékoztatásokért várjuk önt irodáinkban.

A HOUSE36  kínálatában lévő összes ingatlannal kapcsolatban tudok felvilágosítást nyújtani.
Szolgáltatásaink kereső ügyfeleink részére ingyenesek.
Nincs megjeleníthető értékelés.
Ügyvitel: Eladó
Ingatlan típusa: Ház
Ház altípus: Családi ház
Építési mód: Könnyűszerkezetes
Homlokzati szig.: 10 cm
Fűtési mód: Padlófűtés, Hőszivattyús
Ingatlan állapota: Új
Tájolás lakóingatlannál: K-NY
Parkolási lehetőségek: Garázs
Közművek: Villany, Városi víz
Energetikai besorolás: A+
Alapterület: 96.9 m2
Telek területe: 575 m2
Erkély: nem
Terasz(ok) területe: 24 m2
Szobák száma: 4 db
Fürdőszobák száma: 1 db
Építés éve: 2026
Pince van: Nincs
Tetőfedés anyaga: Cserép
Tetőtér beépíthető: Nem
Nyílászárók fajtája: Műanyag
Közvilágítás: Van
Ingatlan tulajdoni helyzete: Saját
Figyelem az adatlap megbízónktól kapott adatok alapján készült, pontosságáért felelősséget nem tudunk vállalni!
Kocsis Zsuzsanna
Vezető értékesítő
Értékesítői fokozat:
Értékesítői fokozat
Ügyfél értékelés:
4.9 (44 értékelés alapján)

Megbízó

2026.03.16.

Megbízó

2026.03.03.

Teljesen mindenek meg vagyok elègedve

Megbízó

2025.10.04.

Kereső ügyfél

2025.08.26.

Megbízó

2025.08.25.

Kereső ügyfél

2025.06.16.

Megbízó

2025.04.11.

Kereső ügyfél

2025.03.24.

igen meg vagyok elégedve

Kereső ügyfél

2025.03.17.

Meg voltam elégedve a munkájával. Köszönöm.

Megbízó

2025.03.11.

Megbízó

2025.02.10.

Megbízó

2025.01.09.

Kereső ügyfél

2024.12.10.

Kereső ügyfél

2024.11.13.

Kereső ügyfél

2024.11.09.

Megbízó

2024.10.27.

Kereső ügyfél

2024.09.30.

Megbízó

2024.08.12.

Kereső ügyfél

2024.07.01.

Kereső ügyfél

2024.05.09.

Kedves, közvetlen, felkészült és jól átadja az információkat. ????

Kereső ügyfél

2024.05.07.

Nagyon kedves, maximálisan segitőkész

Megbízó

2024.03.14.

Azonnali bizalmat érdemlő ingatlanszakértő.

Kereső ügyfél

2024.03.11.

Kereső ügyfél

2024.01.22.

Kereső ügyfél

2024.01.08.

Kereső ügyfél

2023.09.21.

Kereső ügyfél

2023.06.18.

Rettentően segítőkész, barátságos, szakmailag felkészült.

Kereső ügyfél

2023.03.20.

Megbízó

2023.02.04.

Kereső ügyfél

2023.01.30.

Megbízó

2023.01.11.

Kereső ügyfél

2022.10.24.

Kereső ügyfél

2022.03.31.

Kereső ügyfél

2022.03.07.

Kereső ügyfél

2022.03.04.

Kereső ügyfél

2022.01.11.

Kereső ügyfél

2021.11.29.

Kereső ügyfél

2021.10.19.

Kereső ügyfél

2021.09.10.

Kereső ügyfél

2021.09.01.

Kereső ügyfél

2021.08.17.

Kedves és segítőkész, aki az érdeklődők igényeit figyelembe véve ajánl és részletesen tájékoztat.

Kereső ügyfél

2021.08.10.

Rendkívül rugalmas, naprakész. Közvetlensége és tapasztalata nagy biztonságot ad nekünk a házkeresésben.

Kereső ügyfél

2021.07.19.

Teljesen meg vagyok elégedve

Kereső ügyfél

2021.05.25.

Készséges , a kérdéseimre nagyon fyorsan válszol. A megtekintett ingatlant részletesen bemutatja .


Írjon nekem!
A siker csak rajtad múlik
A siker csak
rajtad múlik