house36

Optimális Otthon - Tökéletes Befektetés!

K

#3620944 - Kecskemét - Eladó - Lakás

Ár: 77.9 M Ft
 
Kecskemét egyik ikonikus épülete végre újjászületik! 
Kecskemét belvárosának szélén, mégis pár percre a főtértől, kiváló közlekedés mellett, 27 lakásos liftes társasházban, zömében erkélyes, új lakások leköthetőek. Opcionálisan garázs és beálló vásárlási lehetőség.
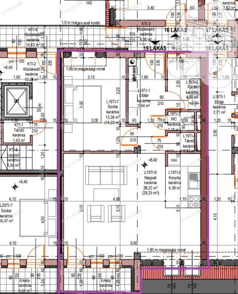
A társasház III. emeletén, bruttó 61,62 m2/nettó 59,73 m2 lakóterű, nappali + 1 szobás lakás, 4,04 m2 erkéllyel megvásárolható.
Várható átadás, 2026 december.
  • 27 lakásos, 5 szintes, liftes épület.
  • Gáz kombi kazán lakásonként
  • Hűtő-fűtő klíma
  • Műanyag 6 légkamrás 3 rétegű ablakok, rejtett redőnytokos redőnnyel felszerelve
  • Beltéri ajtók 5 színben választhatók.
  • Szobákban laminált parketta, egyéb helyiségekben vinyl illetve hidegburkolat.
  • Fürdőszobai szaniterek beépítve műszaki tartalom szerint.
  • Konyhabútor, fürdőszoba szekrény, előszoba fal opcionálisan rendelhető.
További információkat és részletes műszaki tartalmat egy személyes találkozó keretein belül tudunk biztosítani.

A HOUSE36 kínálatában található összes ingatlannal kapcsolatban tudok felvilágosítást nyújtani!

Hívjon bizalommal!
Szolgáltatásaink Kereső ügyfeleink számára INGYENESEK!


Nincs megjeleníthető értékelés.
Ügyvitel: Eladó
Ingatlan típusa: Lakás
Lakás altípus: Új építésű lakás
Építési mód: Tégla
Homlokzati szig.: 15 cm
Fűtési mód: Gázfűtés (cirkó)
Ingatlan állapota: Új
Parkolási lehetőségek: Garázs, Gépkocsi beálló, Utcán
Közművek: Összközmű
Társasházban lévő em. száma: 4
Emelet: 3
Alapterület: 63.64 m2
Erkély: igen
Szobák száma: 2 db
Fürdőszobák száma: 1 db
Építés éve: 2026
Pince van: ---
Tetőfedés anyaga: Cserép
Födém szig.: 25 cm
Tetőtér beépíthető: ---
Nyílászárók fajtája: Műanyag, Redőnyökkel ellátva
Lift: Van
Földszintről induló(lift): Igen
Épületben lakások száma: 27 db
Közös helyiség: Van
Extrák: Klíma, Elektromos garázskapu, Elektromos kapu
Betonút melletti: Igen
Buszmegálló távolsága kb: 120 m
Bolt távolsága kb: 500 m
Iskola/óvoda távolsága: 1200 m
Közvilágítás: Van
Ingatlan tulajdoni helyzete: Saját
Figyelem az adatlap megbízónktól kapott adatok alapján készült, pontosságáért felelősséget nem tudunk vállalni!
Asztalos Tünde
Szakmai vezető
Értékesítői fokozat:
Értékesítői fokozat
Ügyfél értékelés:
4.9 (39 értékelés alapján)

Kereső ügyfél

2023.06.26.

Kereső ügyfél

2022.08.05.

Kereső ügyfél

2022.02.03.

Kereső ügyfél

2022.02.02.

Megbízó

2021.11.19.

Csak pozitív tapasztalatom volt vele kapcsolatban. Nagyon kedves,felkészült, pontos, precíz, minden rezdüléséből látszik a profizmus

Kereső ügyfél

2021.11.04.

Megbízó

2021.10.06.

Kereső ügyfél

2021.06.30.

Kereső ügyfél

2021.06.08.

Kereső ügyfél

2021.06.04.

Mindenben segítséget kaptam .

Kereső ügyfél

2021.05.26.

Tündének udvarias és közvetlen a kapcsolattartása. Nagyon segítőkész volt. Előre tekintő volt a bemutatásra való felkészülése és precíz volt a megtekintés leszervezése. Jó partner.

Kereső ügyfél

2021.04.15.

Kereső ügyfél

2021.01.26.

Nagyszerű és hasznos lakás bemutatást kaptam. Köszönöm szépen

Megbízó

2020.10.13.

Mindenel meg volttam elégedve kíváló értékesitő.mindenkinek ajánlani fogom

Kereső ügyfél

2020.07.23.

Kereső ügyfél

2020.06.29.

Pontos, kedves, segítőkész. Jó, hogy van aki megkérdez helyettünk olyat is ami nekünk eszembe sem jutna, hogy fontos.

Kereső ügyfél

2020.02.28.

Kedves és segítőkész.

Kereső ügyfél

2020.01.31.

Kereső ügyfél

2020.01.18.

A lakás kiváló. Az értékesítő kedves, pontos, naprakész.

Kereső ügyfél

2019.05.15.

Kereső ügyfél

2019.04.03.

Kereső ügyfél

2019.03.30.

Közvetlen, felkészült és segítőkész.

Kereső ügyfél

2019.01.14.

Kedves, minden információt megoszt az ingatlannal kapcsolatban.

Kereső ügyfél

2018.12.10.

Kereső ügyfél

2018.10.06.

Kereső ügyfél

2018.08.07.

elégedett voltam: udvarias, segítőkész, nem tolakodó. Sajnos a folyamat "félidőben" félbeszakadt, de ennek ellenére viszonylag jó képet kaptam az értékesítőről.

Kereső ügyfél

2018.08.03.

Kereső ügyfél

2018.08.03.

Kereső ügyfél

2018.08.01.

Kereső ügyfél

2018.06.27.

Kereső ügyfél

2018.06.27.

Kereső ügyfél

2018.06.12.

Tünde nagyon jól végzi munkáját. Pontos, udvarias és segítőkész.Ügyesen felméri a vásárló igényeit és a kérdéseket is megválaszolja.

Kereső ügyfél

2018.05.07.

Kereső ügyfél

2018.04.09.

Tünde nagyon segítőkész , kedves , és teljes körűen felkészült !!

Kereső ügyfél

2018.02.15.

Kereső ügyfél

2018.01.24.

Kedvesség,maximalista a munkájában,bármikor szivesen fordulok hozzá!

Kereső ügyfél

2018.01.19.

Kereső ügyfél

2018.01.08.

Kereső ügyfél

2017.12.17.

Szeretném megköszönni Asztalos Tünde munkáját ! Nagyon Kedves , és mindenben a segítségemre van ! Legyen szombat , vagy vasárnap Ő akkor is segít !! Nagyon köszönöm Tünde !! Szeretném , ha a Te segítségeddel találnám meg az új otthonunkat !! Köszönettel : Vera


Írjon nekem!
A siker csak rajtad múlik
A siker csak
rajtad múlik